Chambre funéraire Barth
Project/Architecture
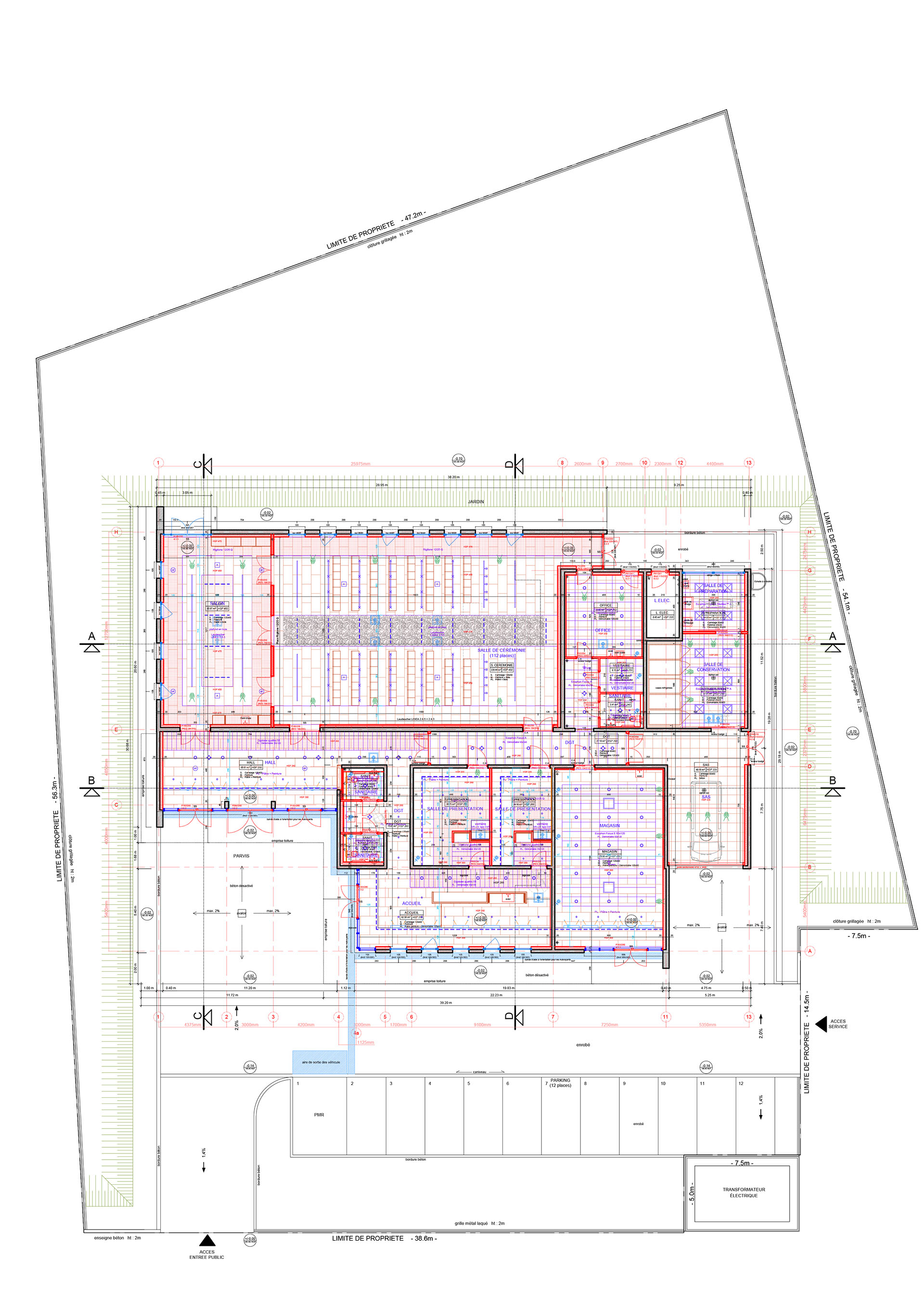
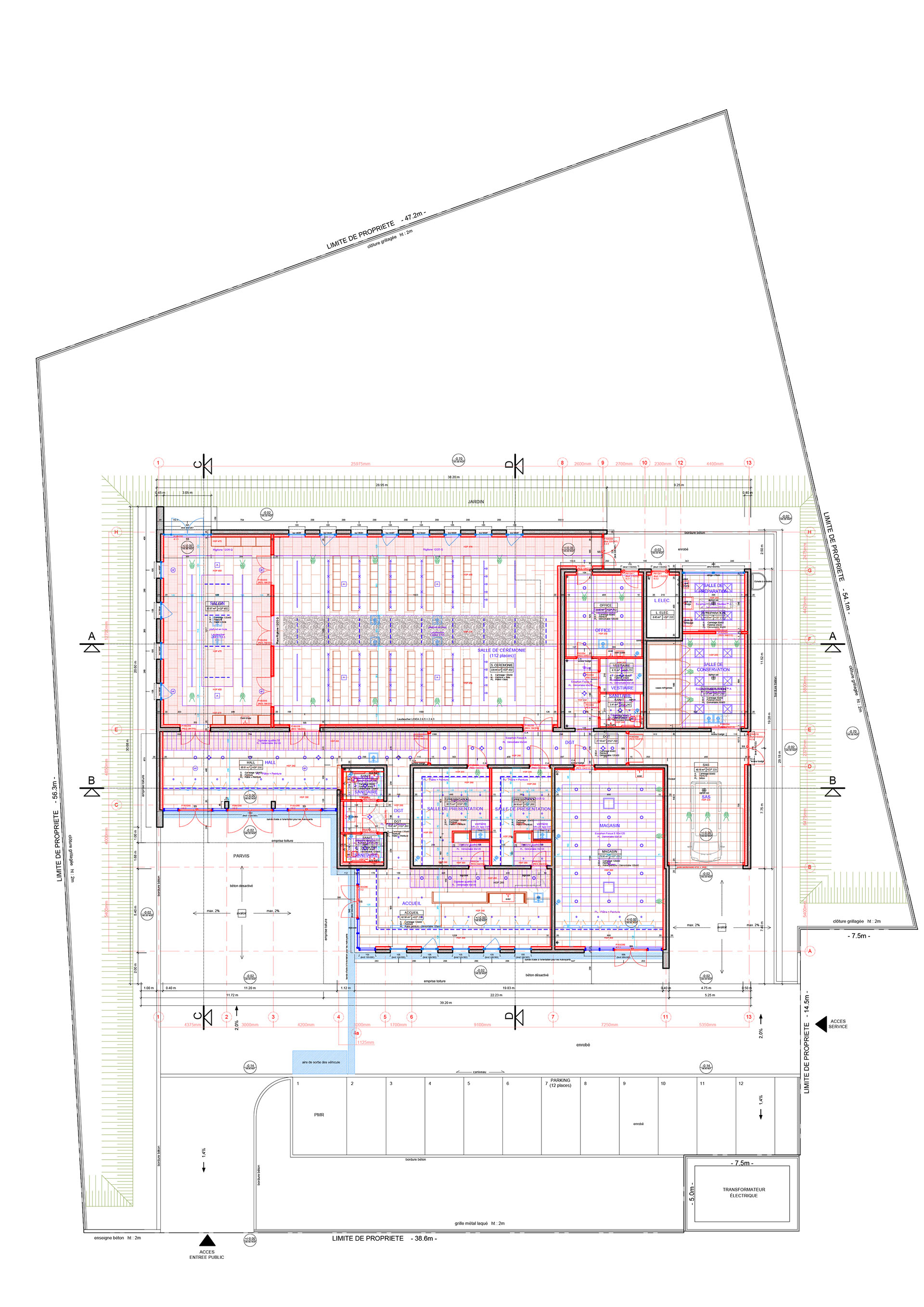
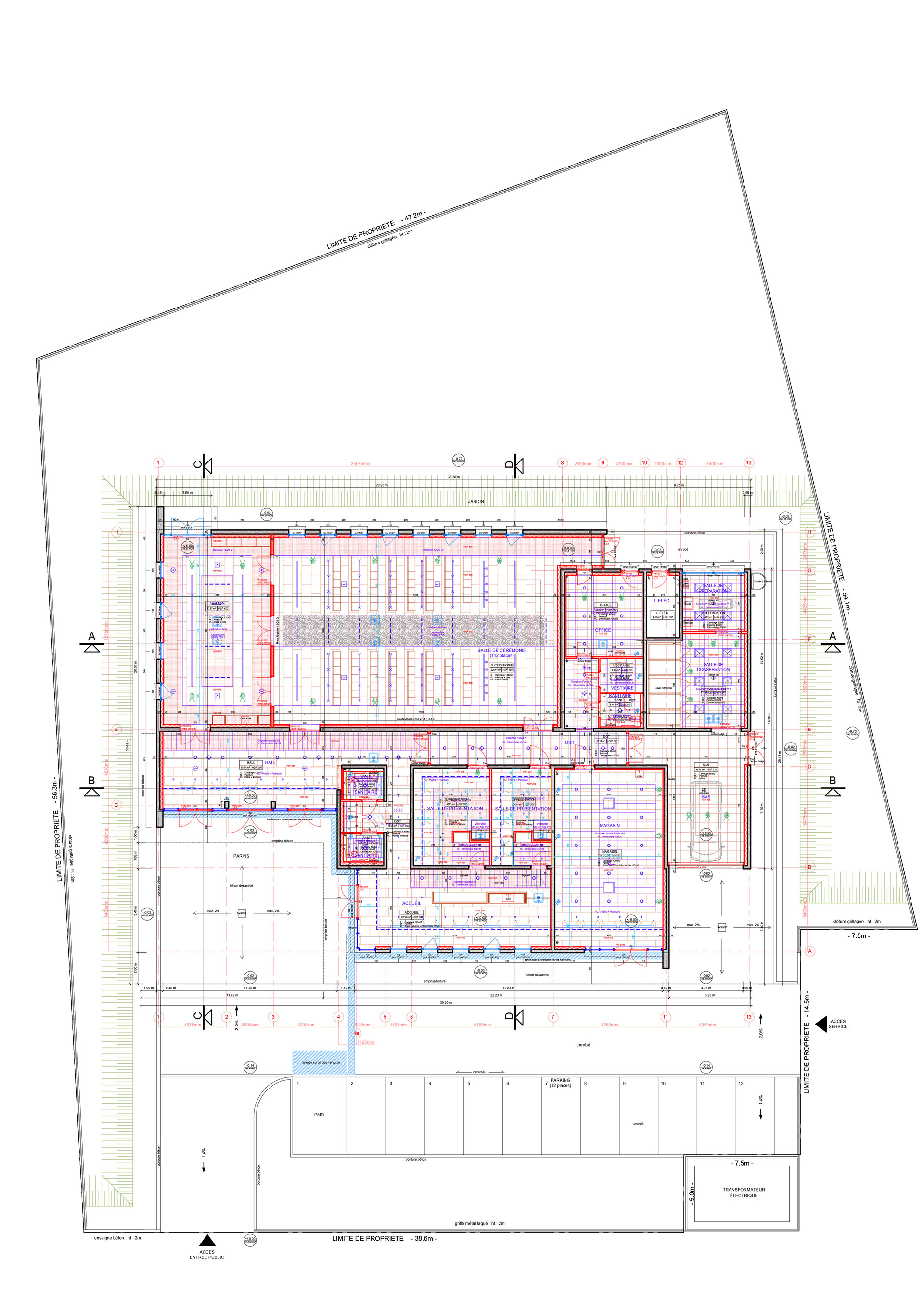
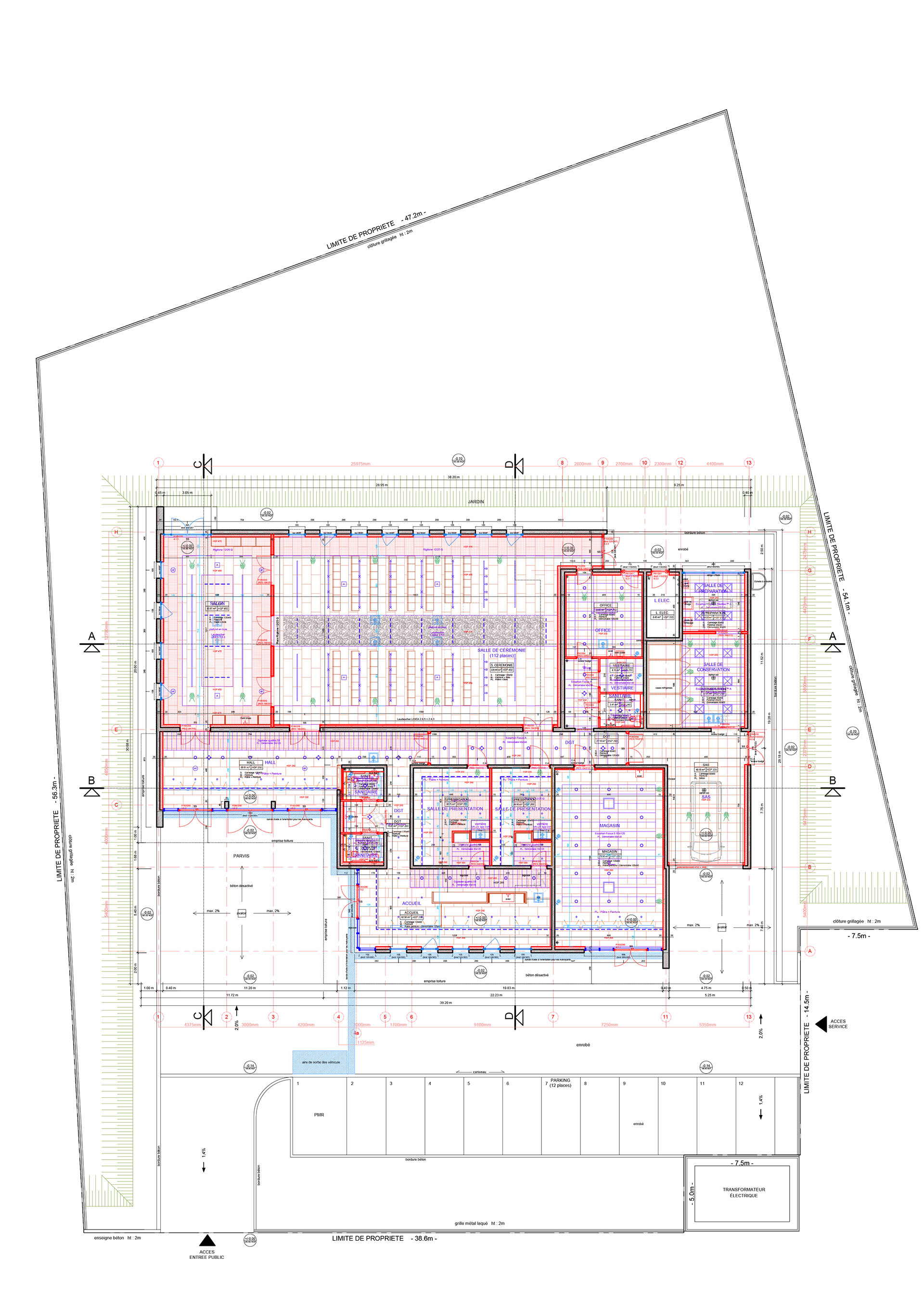
Le projet consiste en la construction d'une chambre funéraire constituée d'un bâtiment construit de plain pied et sur un seul niveau. L'ensemble funéraire regroupe une partie, accessible au public, comprenant une salle de cérémonie, deux salles de présentations et un espace magasin et une partie, réservée au personnel, constituée d'une salle de conservation, d'une salle de préparation et des locaux techniques et sociaux nécessaires à l'activité.


















구분 : 개인
|
Type : privé
|