Collège des Missions africaines

Project/Collaboration


 

 

 

 

 

 

 

 

 

 

 

 

 

 

 

 

 

 

 

 

 

 

 

 

 

 

 

 

 

 

 

 

 

 

 

 

 

 

 

 

 

 

 

 

 

 

 

 

 

 

 

 

 

 

 

 

 

 

 

 

구분 : 개인
설계 : TEKTON Architectes
설계기간 : 2022.01 ~ 2023.01
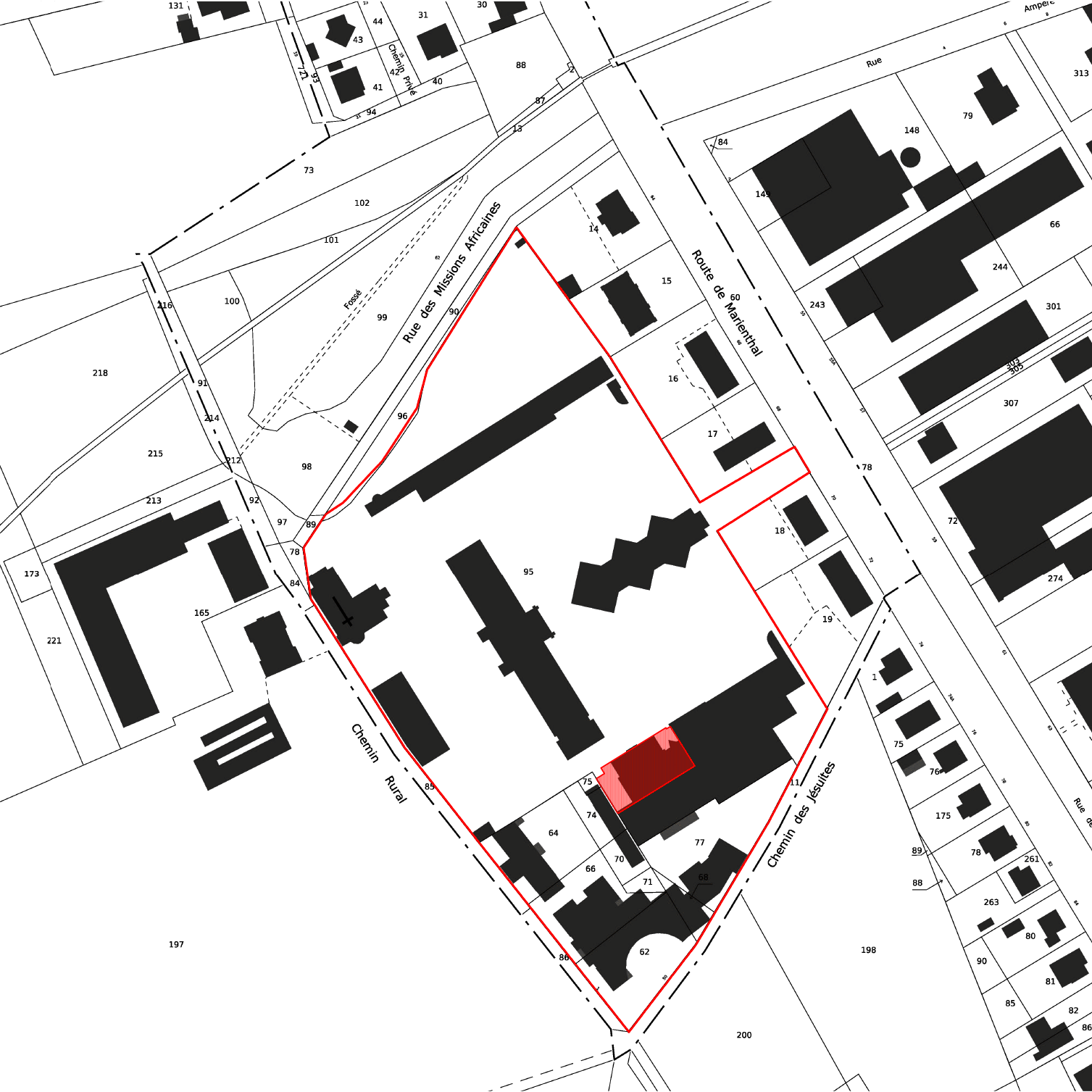
위치 : 아그노, 프랑스
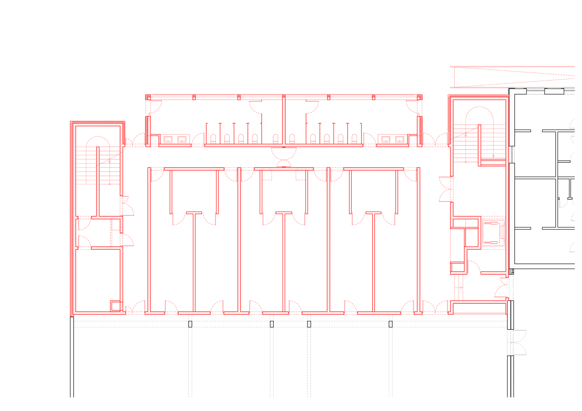
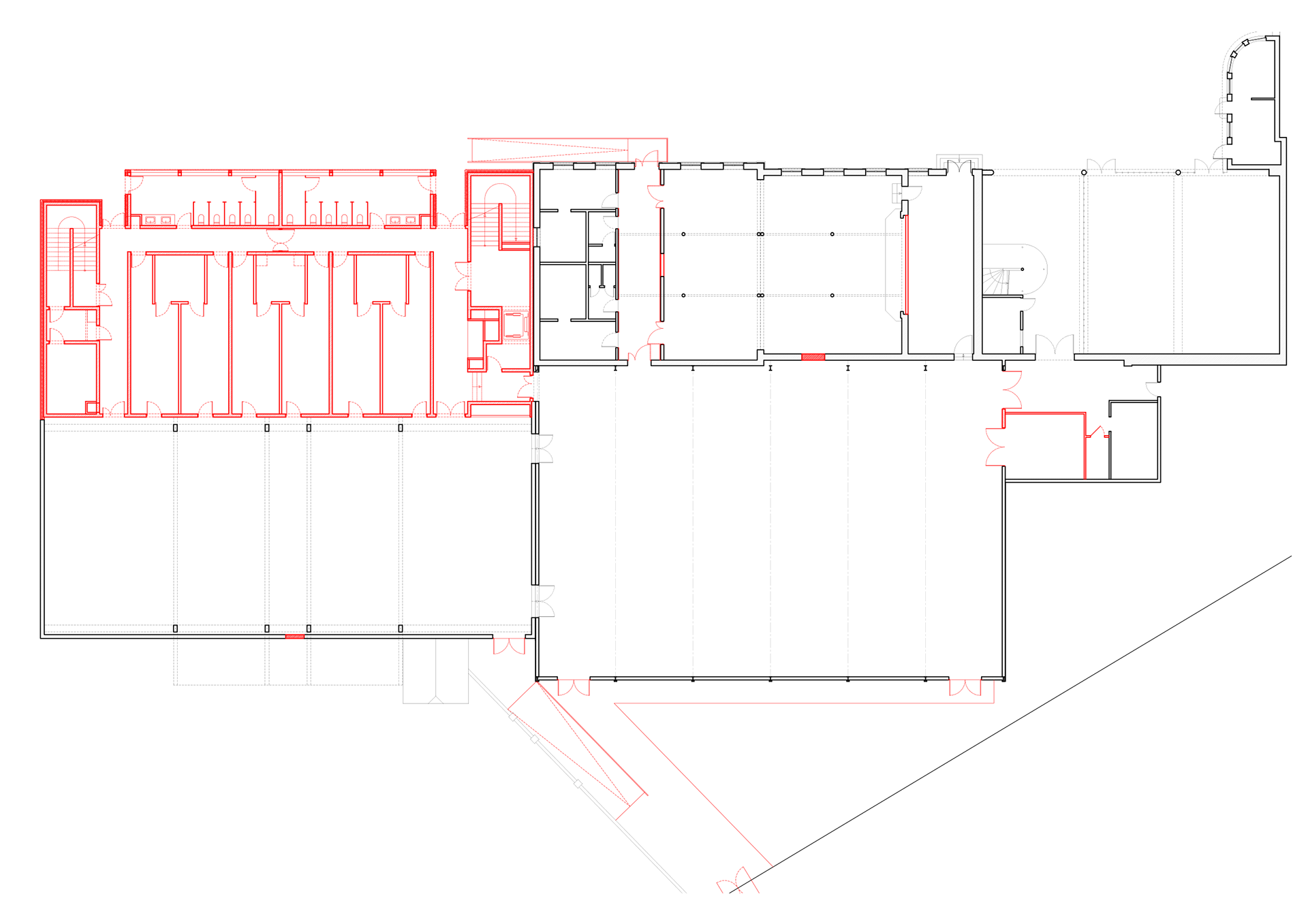
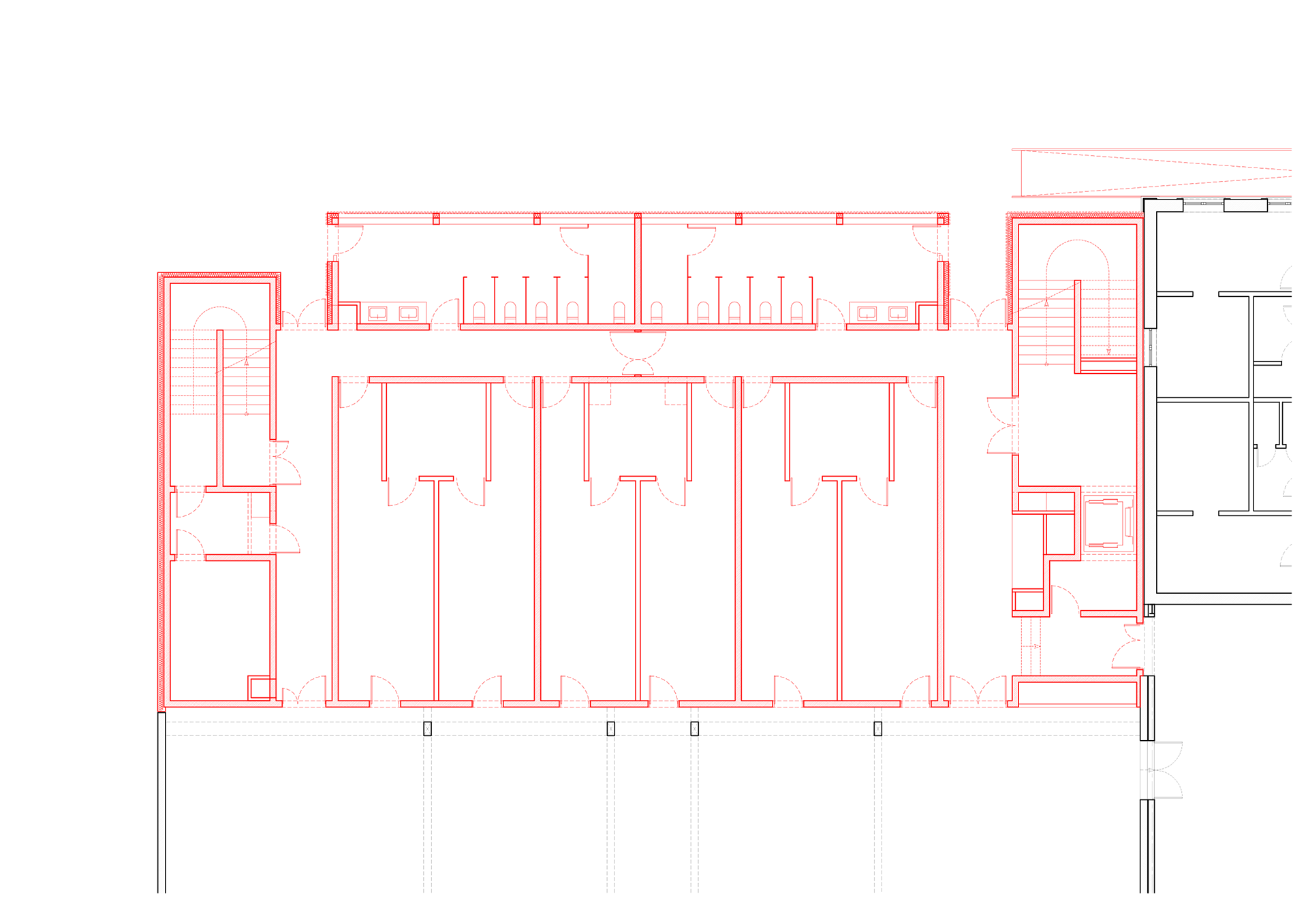
용도 : 교육시설
업무 : 계획, 중간, 허가
대지면적 : 13,034 m²
건축면적 : 514 m²
연면적 : 971 m²
규모 : 지상 3층
구조 : 철근콘크리트 구조
외부마감 : 목재 슬라이딩

Type : privé
Conception : TEKTON Architectes
Période de conception : 01.2022 ~ 01.2023
Lieu : Haguenau(67) France
Programme : établissements éducatifs
Mission : AVP, PC
Superficie terrain : 13 034 m²
Surface bâtiment : 514 m²
Surface brute de plancher : 971 m²
Portée du bâtiment : 2 étages
Structure : béton armé
Finition extérieure : bardage bois, enduit lisse

Type : private
Design Team : TEKTON Architectes
Design period : 2022.01 ~ 2023.01
Location : Haguenau, France
Building use : education
Work scope : SD, DD
Site area : 13034 m²
Building area : 514 m²
Total floor area : 971 m²
Building scope : 3F
Structure : reinforced concrete
finishing : wood siding