Dosan Park Complex Building

Project/Architecture


도산공원 복합건물

 

 

 

 

 



 

 

 

 

 

 

 

 

 

 

 

 

 

 

 

 

 

 

 

 

 

 



 

 

 

 

 

 

 

 

 

 

설계기간 : 2024.12 ~ 2025.02
위치 : 서울시 강남구 신사동
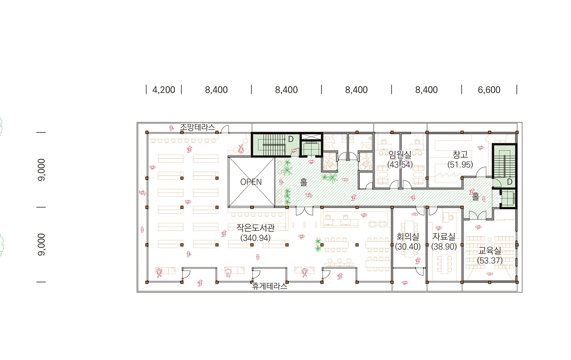
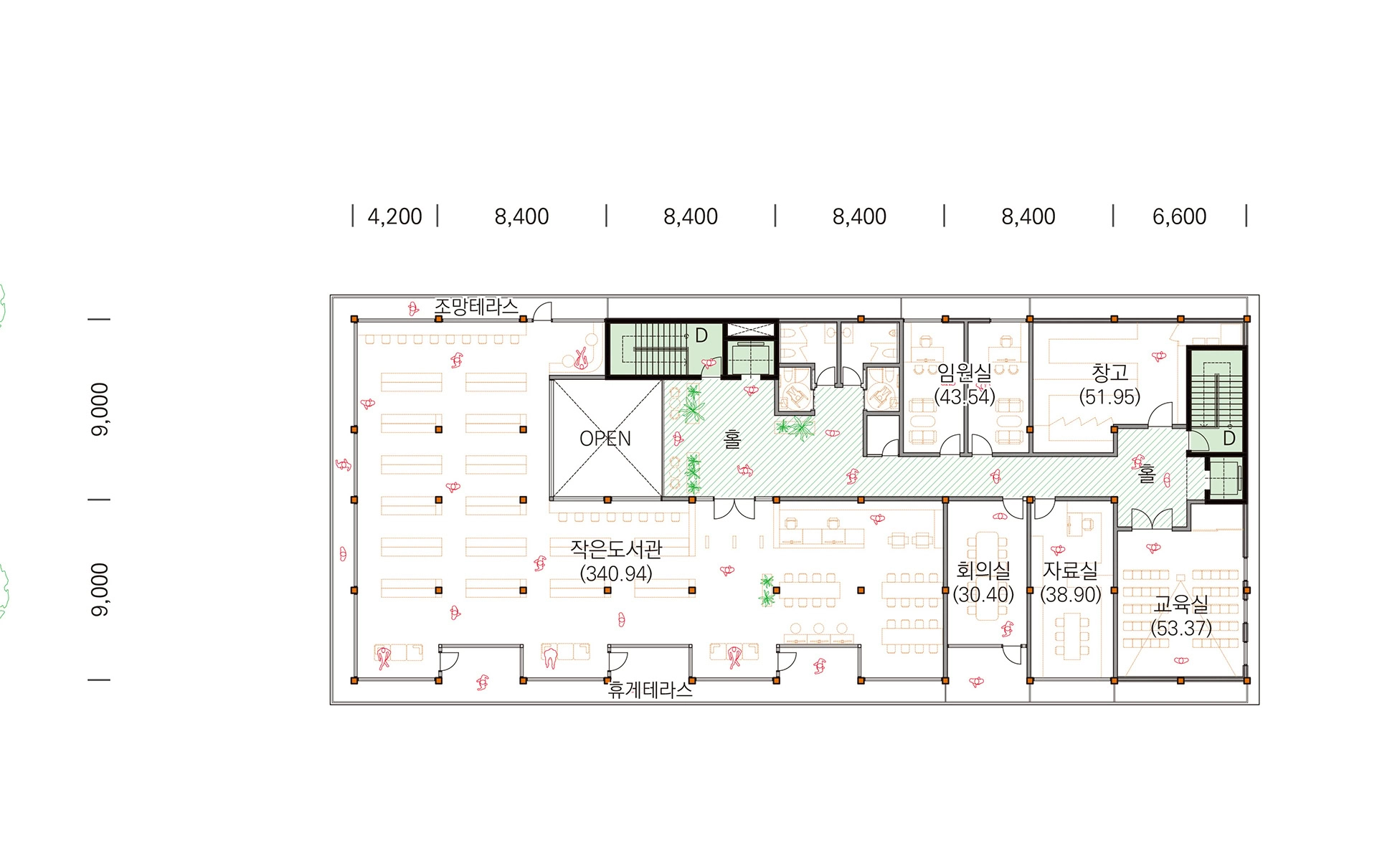
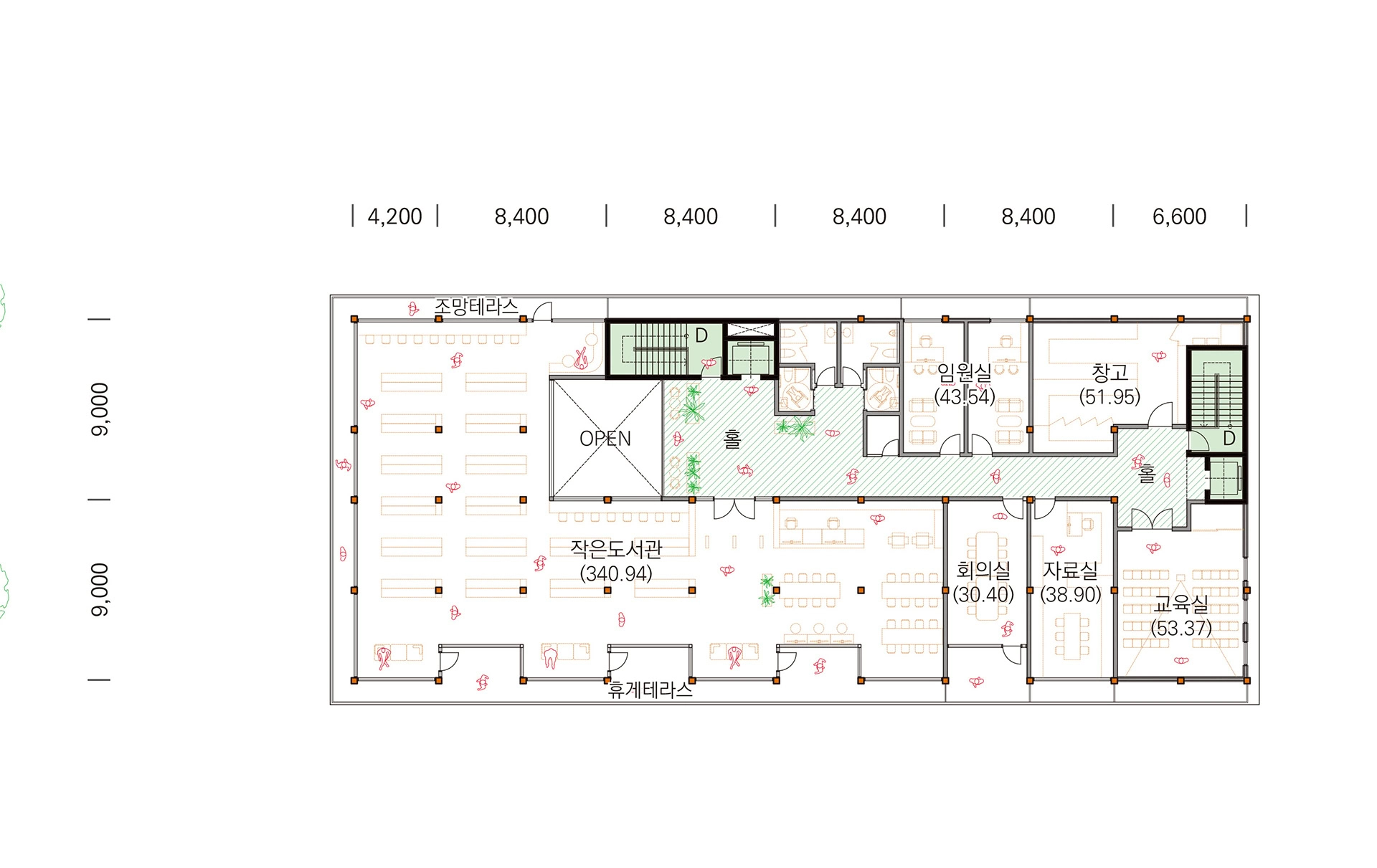
용도 : 문화 및 집회시설(전시장), 자동차 관련시설
대지면적 : 29,816 m²
건축면적 : 808 m²
연면적 : 7,528 m²
규모 : 지하4층, 지상2층
구조 : 하이브리드 적층 중목구조(지상), RC구조(지하)
주요마감 : 하이브리드 적층 목구조 노출, 로이복층유리, 천연방수 석고마감, 알루미늄강판

Design period : 2024.12 ~ 2025.02
Location : Sinsa-dong, Gangnam, Seoul
Program : Cultural facilities (exhibition halls), Parkings
Site area : 29816 m²
Building area : 808 m²
Gross floor area : 7528 m²
Building scope : 2F 4BF
Structure : Hybrid laminated timber structure, RC structure