Sancheong Dried Persimmon Center
Project/Architecture
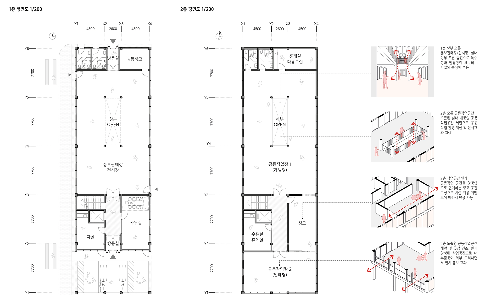
지리산 산청곶감 홍보판매장
산청 곶감 시장에 노는이 일하는 이
일상과 시장 잔치 활기로 곶감 터
애매하게 열린 위 아래층 사람 한데
사는 사람 파는 사람 소리 환히 퍼
위로 옆으로 사이로 스며든 햇살이
붉은흙벽 부비고 찾아와 황금빛 터









. |
. |
. |
Project/Architecture
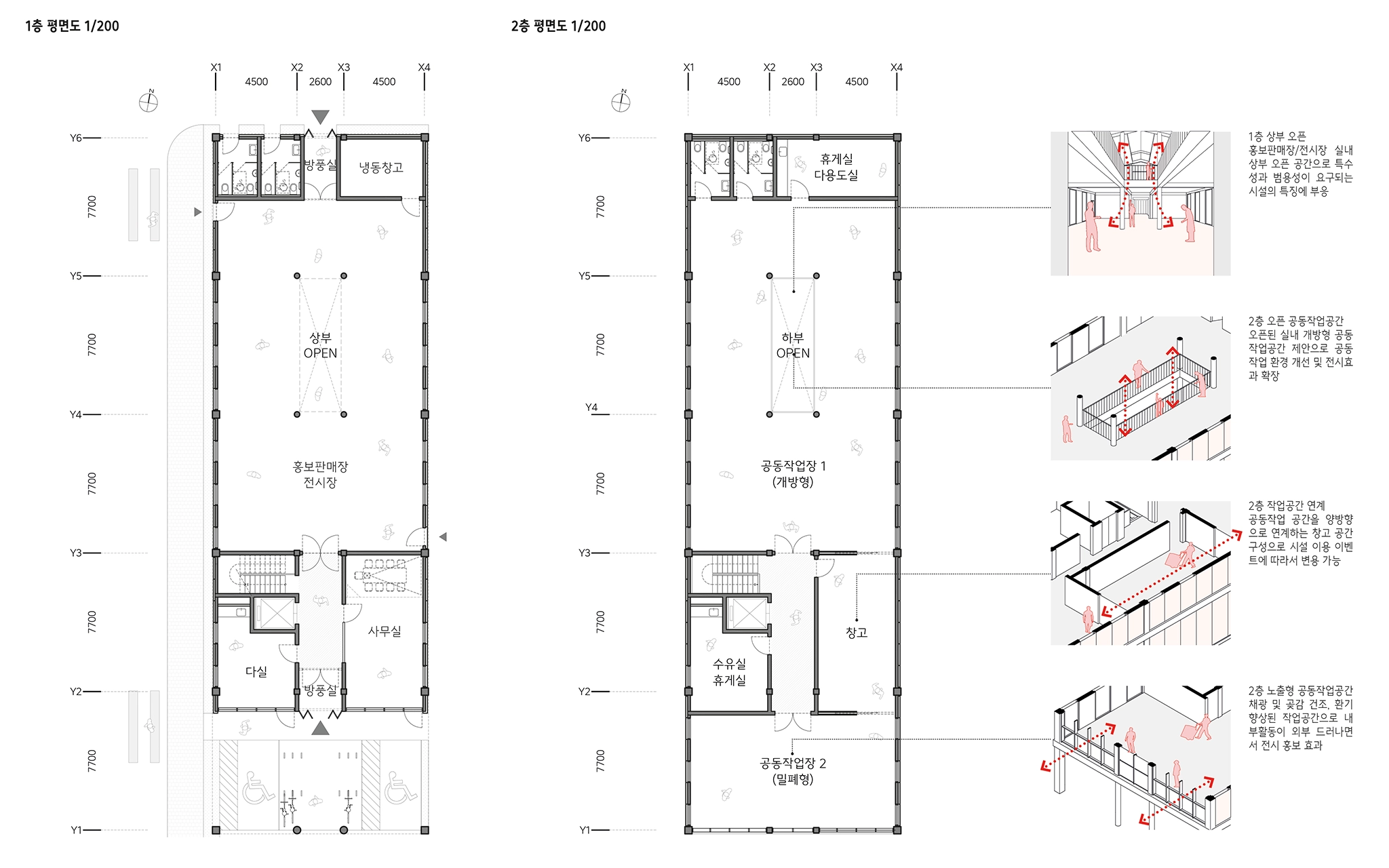
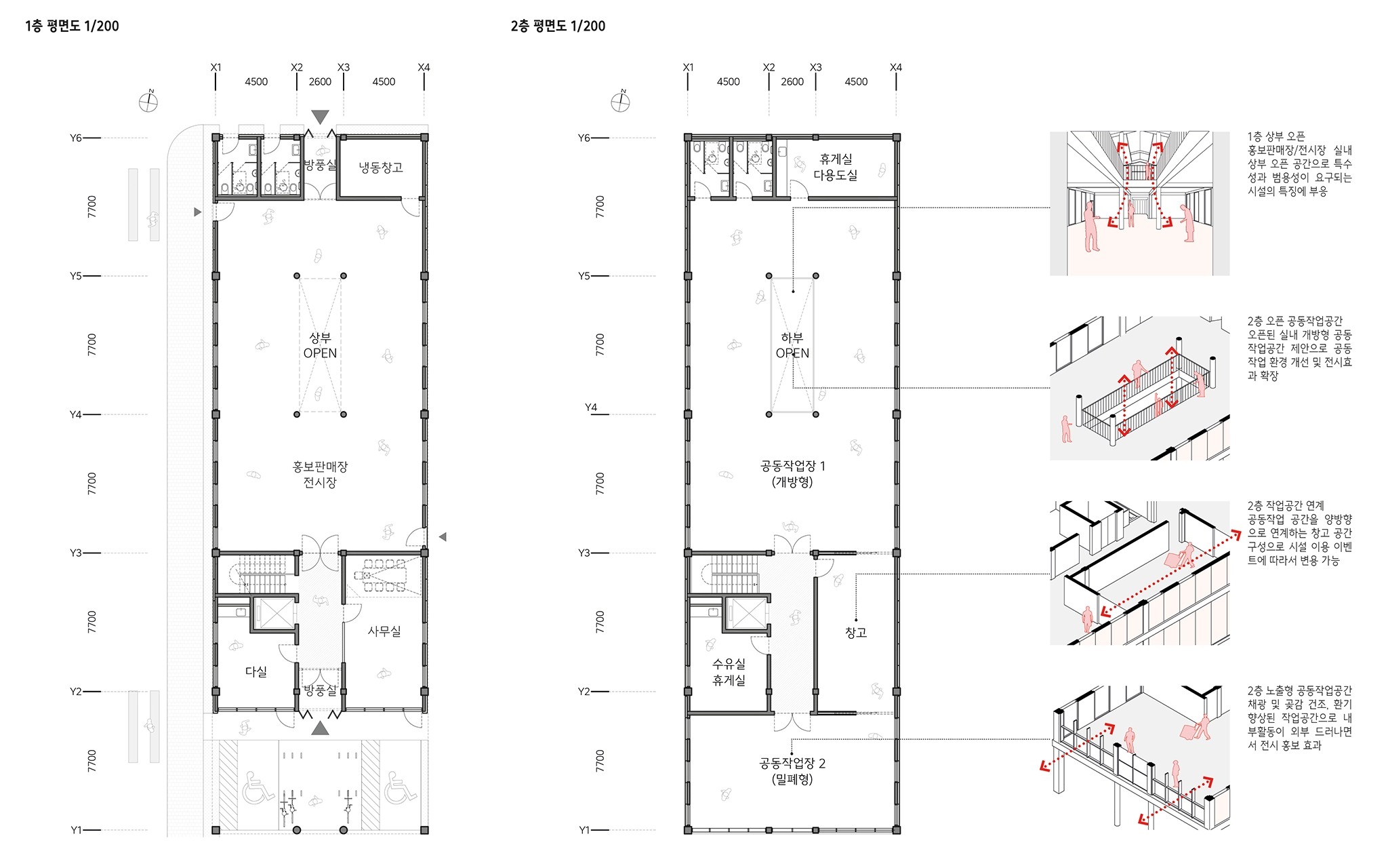
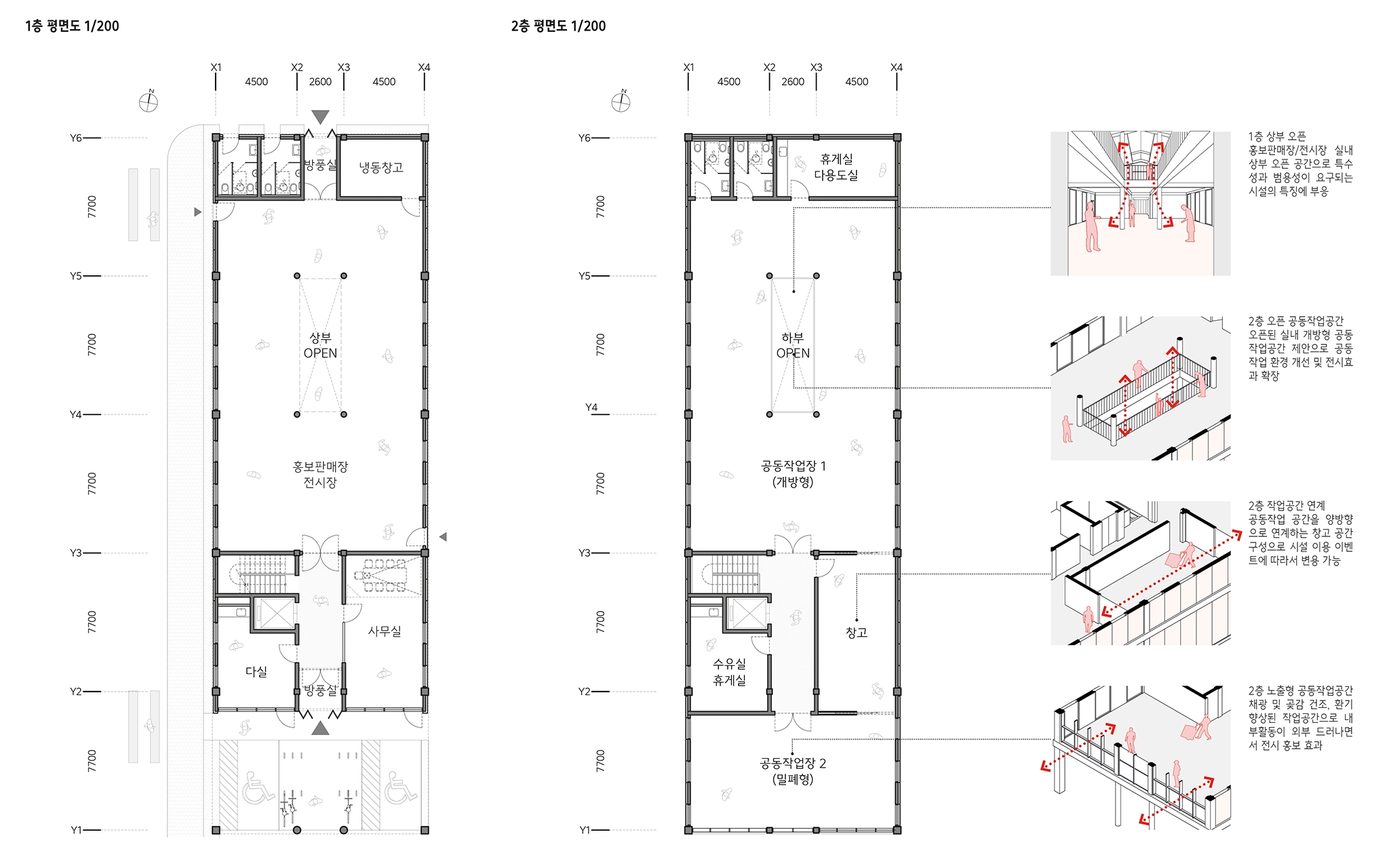
산청 곶감 시장에 노는이 일하는 이
일상과 시장 잔치 활기로 곶감 터
애매하게 열린 위 아래층 사람 한데
사는 사람 파는 사람 소리 환히 퍼
위로 옆으로 사이로 스며든 햇살이
붉은흙벽 부비고 찾아와 황금빛 터









. |
. |
. |