KIM Daeil | architect
메뉴
KIM Daeil | architect
search in site
search in site
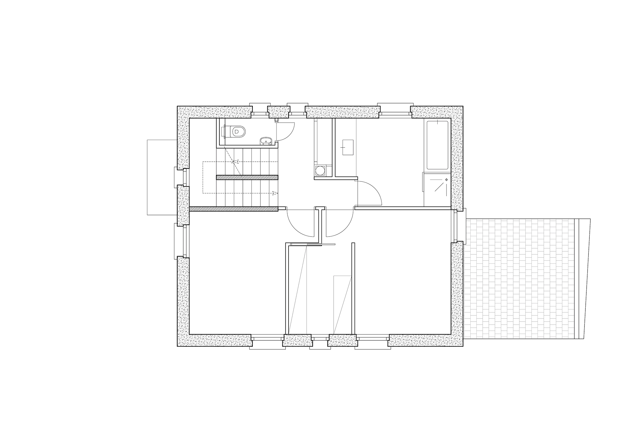
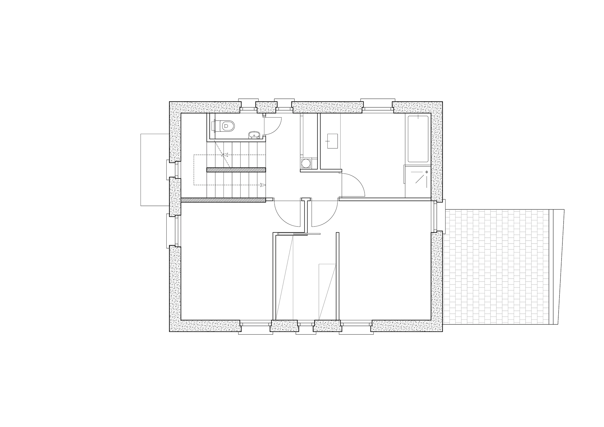
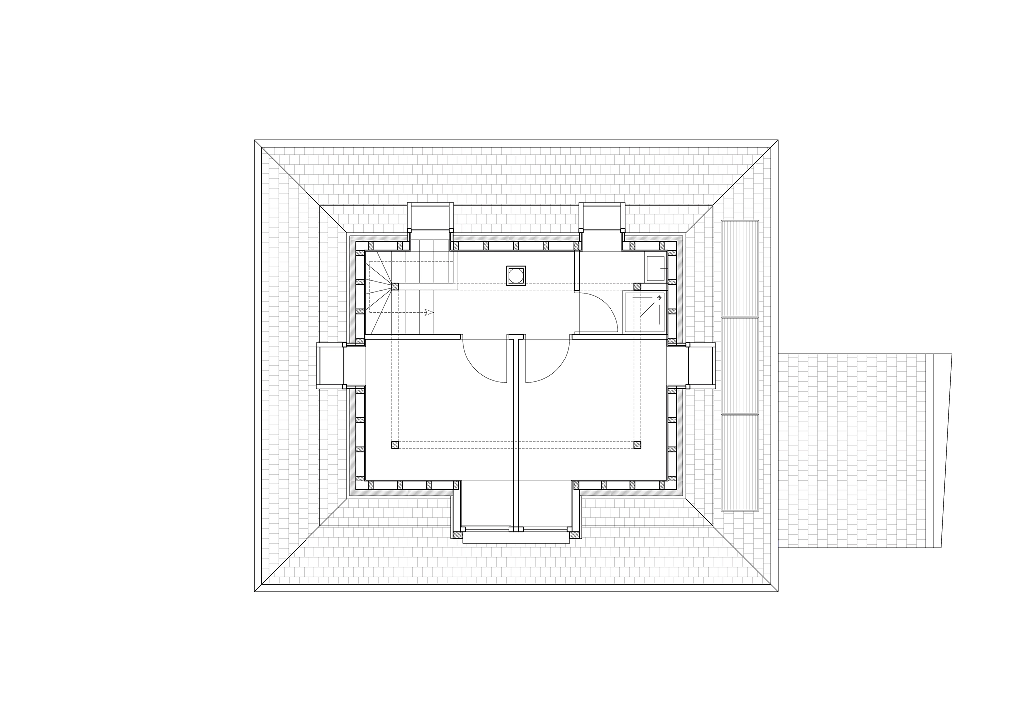
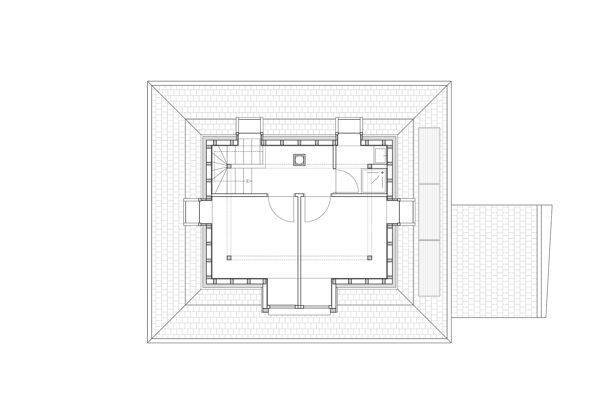
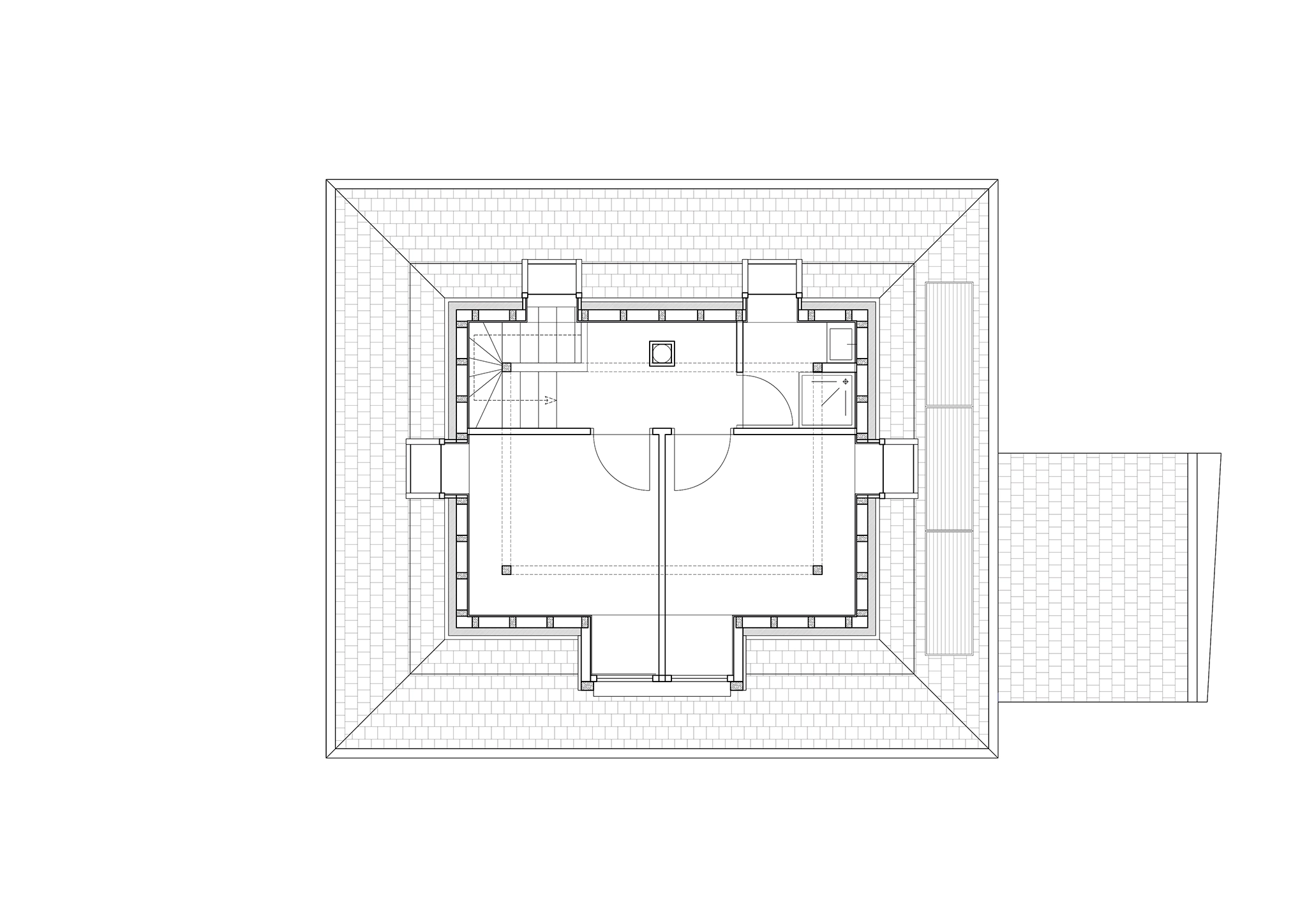
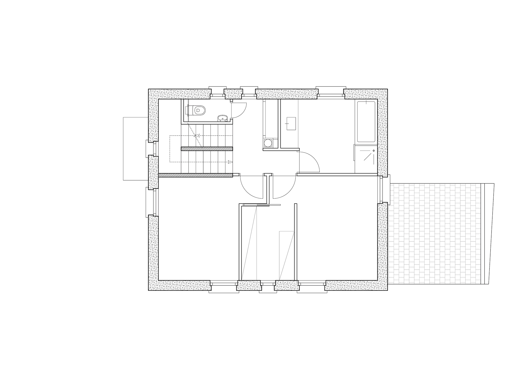
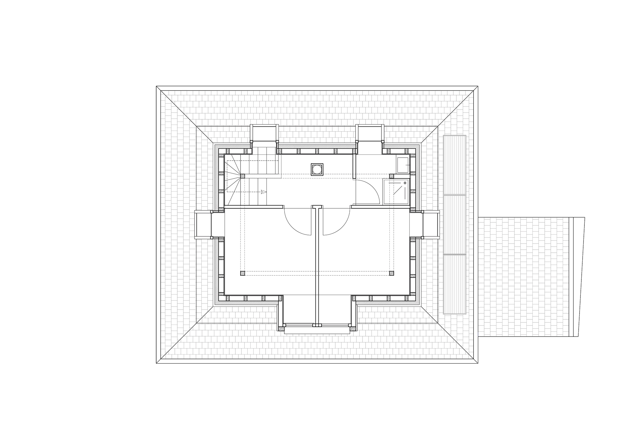
Maison à Eschau -
Project/Collaboration
공유하기
게시글 관리
KIM Daeil | architect
티스토리툴바