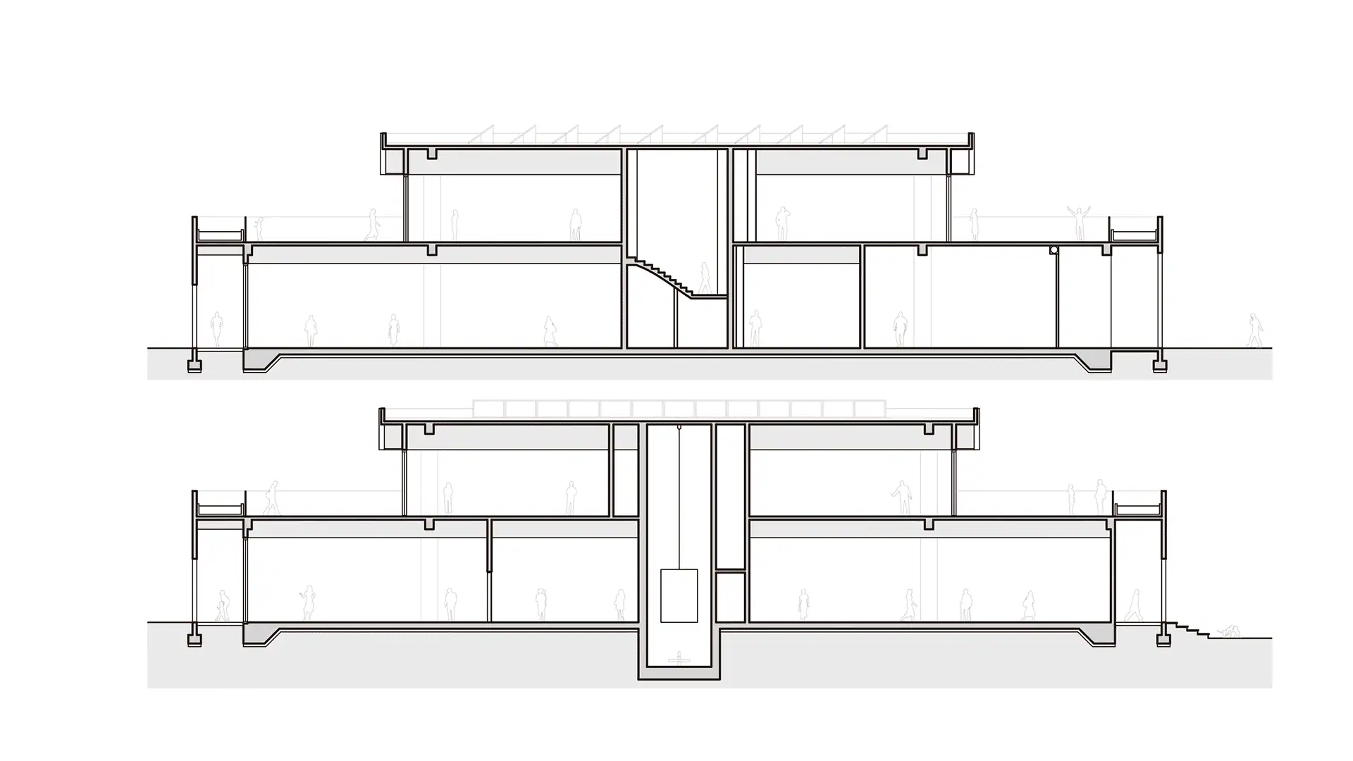
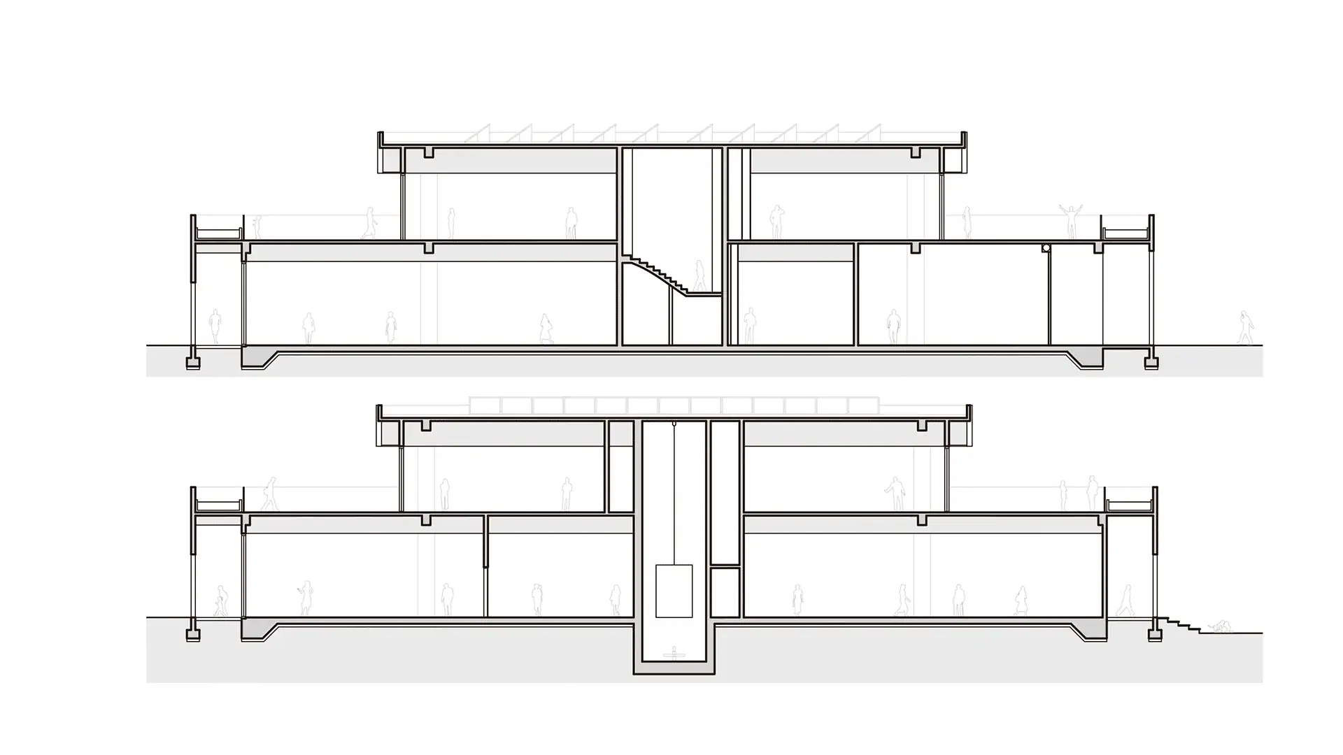
Paju Local Food Center
Project/Architecture
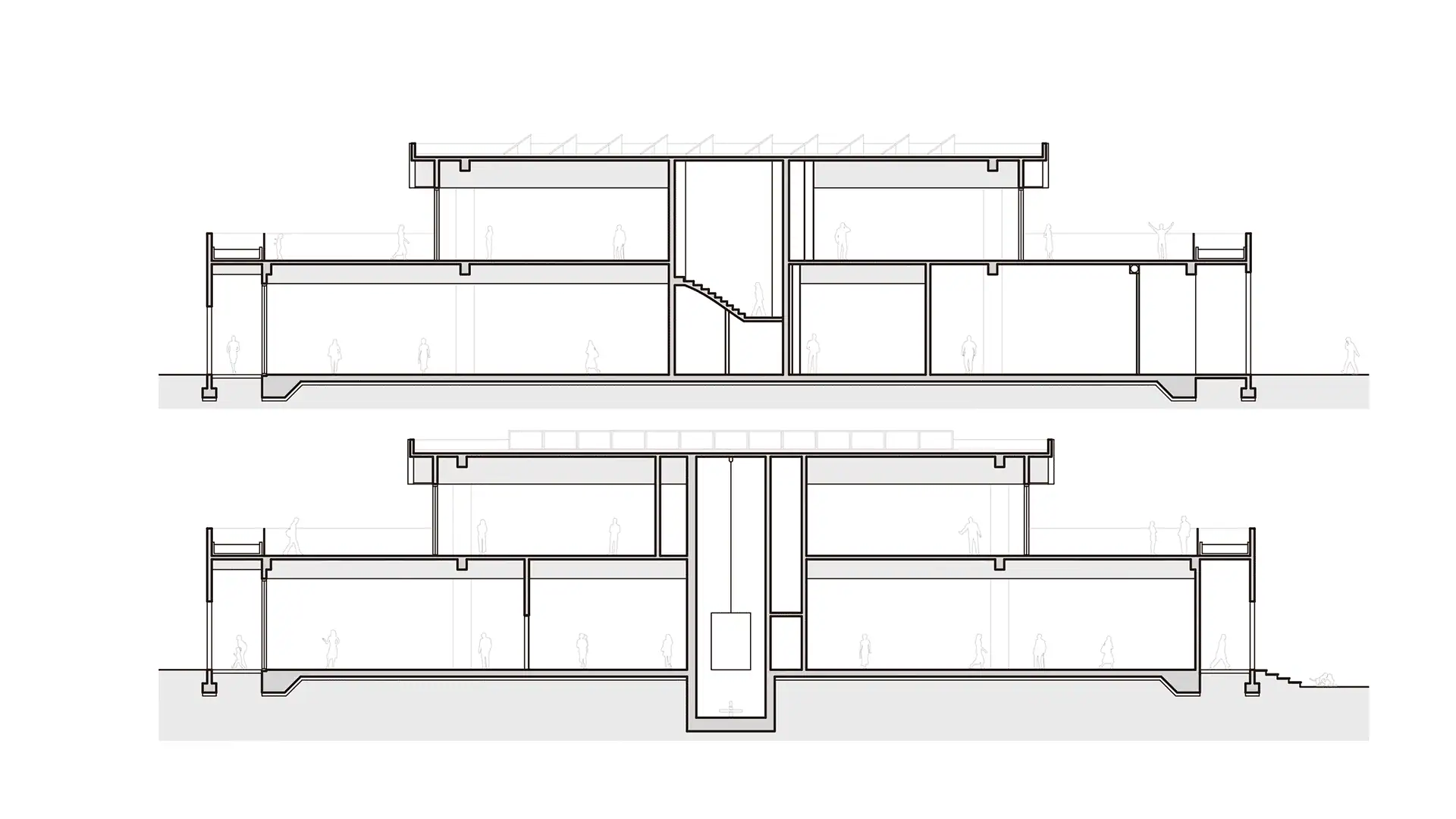
파주 로컬푸드 복합센터
볕 없는 황토빛 시루에 둘러
녹음의 사람 향을 두른다
시루에 풀내음 짙게 둘러
그 언덕을 오른다
흩어지는 꽃잎을 둘러
잿빛 병풍에 향기를 밴다













.
|
. |
.
|
Project/Architecture
볕 없는 황토빛 시루에 둘러
녹음의 사람 향을 두른다
시루에 풀내음 짙게 둘러
그 언덕을 오른다
흩어지는 꽃잎을 둘러
잿빛 병풍에 향기를 밴다













.
|
. |
.
|