Expansion of the Municipal Bandabi Sports Center

Project/Architecture


동네 야산 공원 속에 체육관 자리하고
나무와 꽃 어우러진 산책길 사람 모여

옆에 덧댄 생활 터에 숲의 길 이어지니
어깨맞이 높이 맞춰 온전한 한 길

아래 사방으로 열린 회색 다리 사이로
사람과 숲 교우하며 생활터에 길

 

 

 

 

 

 

 

 

 

 

 

 

 

 

 

 

 

 

 

 

 

 

 

 

 

 

 

 

 

 

 

 

 

 

 

 

구분 : 현상설계, 서울시
설계기간 : 2022.11 ~ 2022.12
위치 : 서울시 송파구 동남로
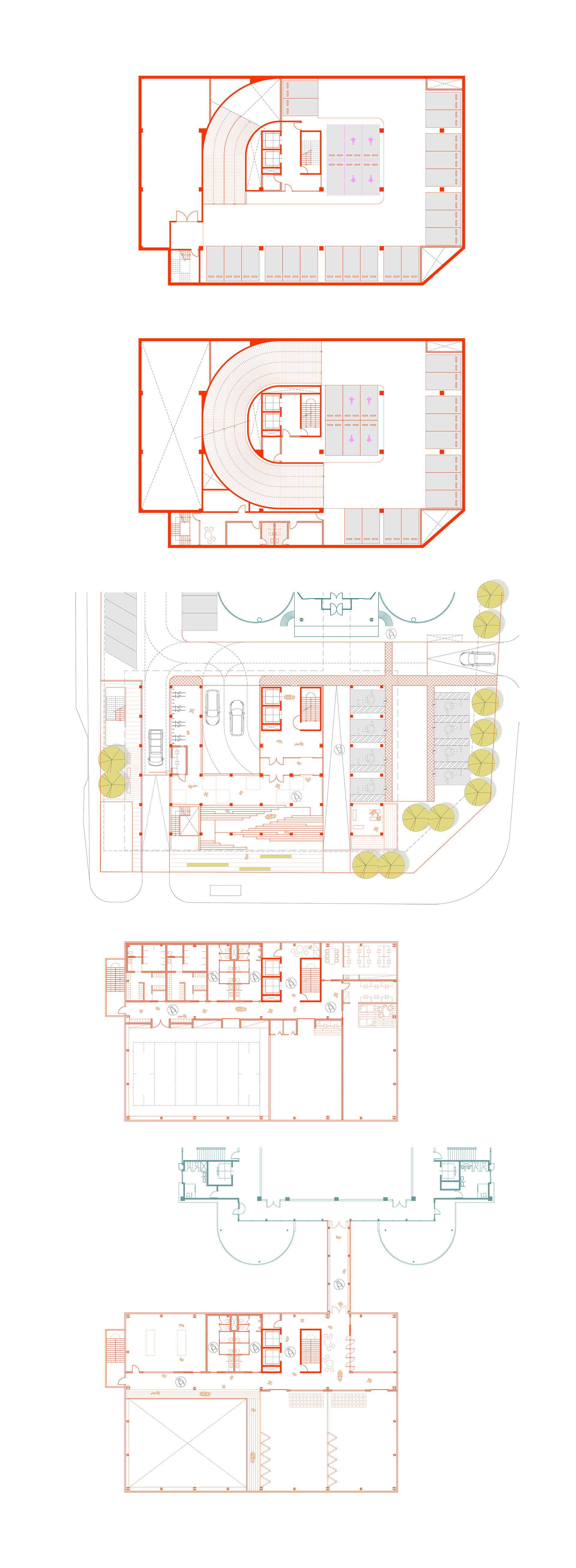
용도 : 운동시설, 장애인 편의시설
대지면적 : 4799 m²
건축면적 : 992 m²
연면적 : 3798 m²        
규모: 지하 2층, 지상 3층        
구조 : 철근콘크리트 및 철골조
외부마감 : 패턴주조 무늬커튼월, 노출콘크리트

Type : Concours, Ville Seoul
Période de conception : 2022.10 ~ 2022.12
Lieu : Dongnam-ro, Songpa-gu, Séoul, Corée
Programme : centre sportif pour handicapés
Superficie terrain : 4 799 m²
Surface bâtie : 992 m²
Surface brute de plancher : 3798 m²
Portée du bâtiment : 3F, 2 niveaux de sous-sol
Structure : béton armé, charpente métallique
Finition extérieure : mur-rideaux, béton apparent

Type : Competition, Seoul
Design period : 2022.10 ~ 2022.12
Location : Dongnam-ro, Songpa-gu, Seoul, Korea
Building use : sports center for the disabled
Site area : 4799 m²
Building area : 992 m²
Total floor area : 3798 m²
Building scope : 3F, 2B
Structure : reinforced concrete, steel frame
finishing : exposed concrete, curtain wall