Ecole maternelle à Geudertheim
Project/Architecture
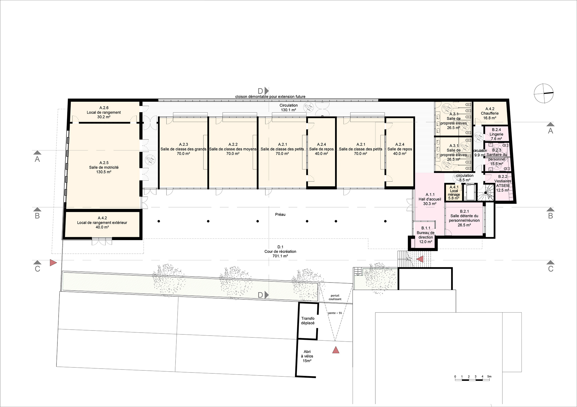
L’architecture proposée répond aux nécessaires compacité et fonctionnalité du projet, par l’intermédiaire de formes simples et identifiables, d’un jeu de transparences, d’opacités et de contrastes de matériaux, jouant sur la multiplicité des vues et des lumières naturelles, et composant la géométrie des espaces extérieurs. Ce registre formel permet d’identifier les différents éléments du projet tout en les rassemblant dans une même cohérence, ce qui confère à cette nouvelle construction une identité et des proportions en rapport avec l’échelle des constructions environnantes.
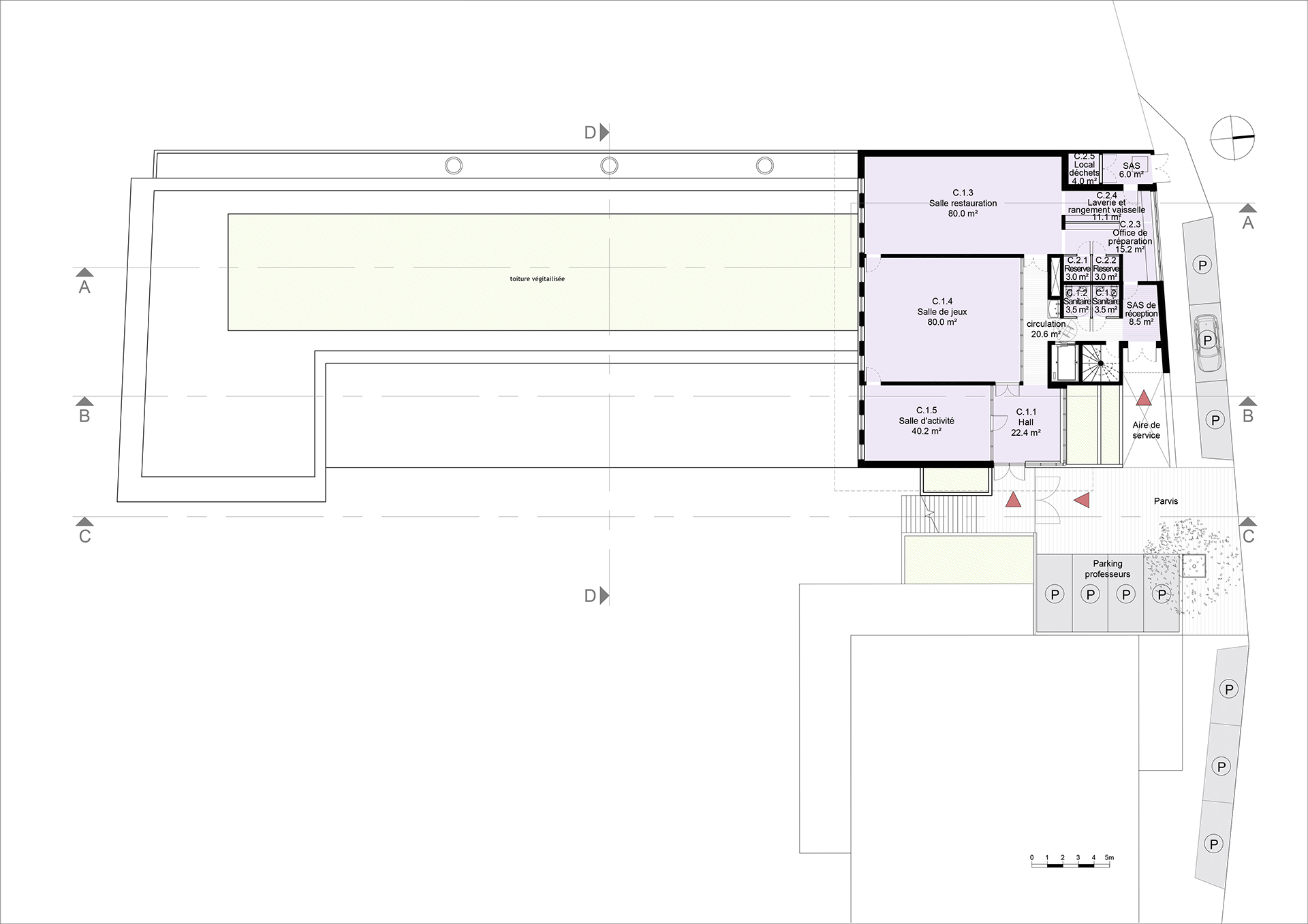
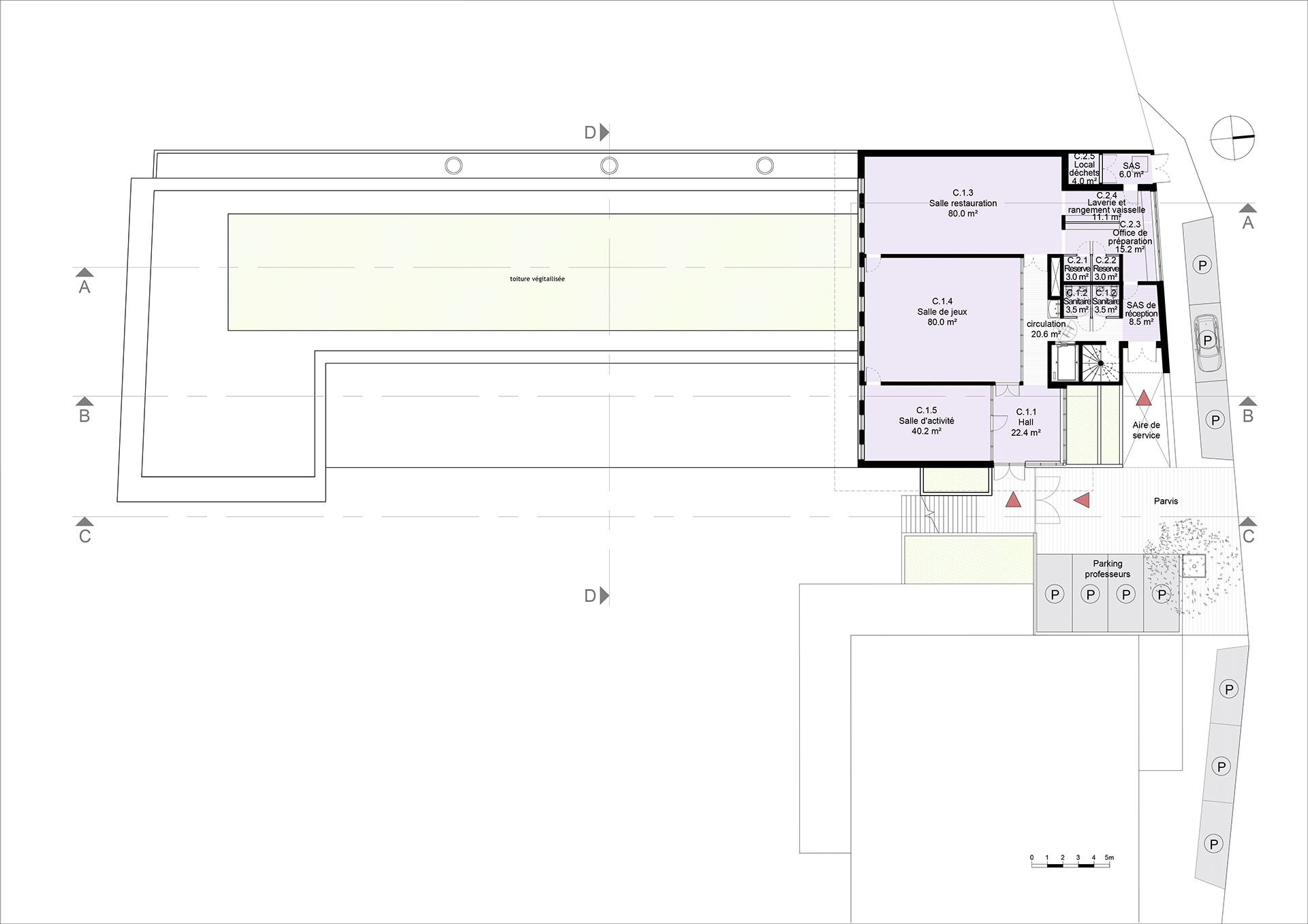
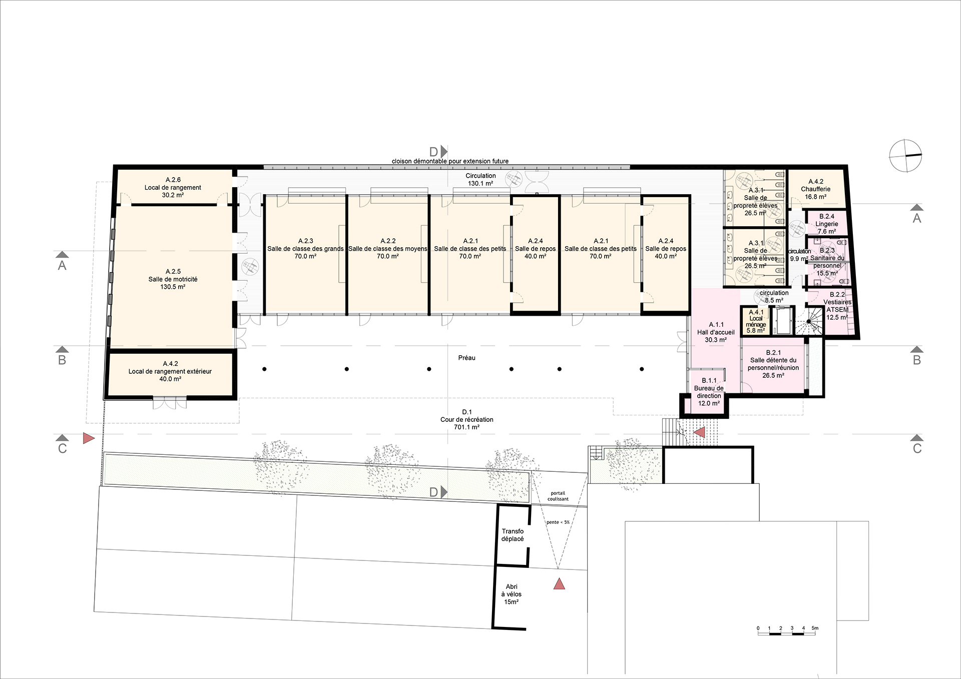
La nouvelle construction organisée autour de la Cour de récréation s’inscrit dans un ensemble bâti construit autour de la Mairie et de sa Place. L’Ecole exprime un volume de facture contemporaine, sobre et discret dans le choix des teintes, en harmonie avec les bâtiments publics voisins, alliant des parties maçonnées et des façades légères protégées par des débords de toits généreux. La façade sur rue du Général De Gaulle est traitée en dialogue avec la façade de la Mairie, avec l’expression d’un soubassement et un jeu de matériaux et de teintes en harmonie avec le bâti existant.
Les entrées à la Cour sont identifiées par des portails et grilles de serrurerie traités en fer plat et en tôle découpée. Le volume de l’Accueil Périscolaire, positionné en limite haute du terrain, peut se lire comme un bâtiment indépendant, à l’échelle du bâti peu dense de type maison et jardins caractérisant la rue des Petits Champs.
Un travail approfondi a été mené sur le choix des matériaux, le traitement des enveloppes extérieures et des dispositifs architecturaux et techniques, qui favorisent le traitement naturel de la ventilation et de la protection ou de la régulation des apports solaires, par des dispositifs simples, pérennes et sans apport technologique lourd et consommateur d’énergie. Ce travail se traduit par un dialogue entre matériaux, choisis pour leur résistance et leur pérennité : Les espaces réservés à l’accueil et aux activités des enfants sont construits, en structure mixte béton et ossature bois, avec isolation naturelle intérieure et dans l’épaisseur des parois. Les façades largement vitrées laissent apparaître les ossatures bois associées à des menuiseries alu de type mur rideau. Les vêtures sont constituées de panneaux fibre-ciment de teinte vert cuivre. Des stores et brise-soleils extérieurs motorisés sont disposés entre les montants des ouvertures des façades Sud. L’expression du matériau bois au moyen d’habillages muraux et de mobilier est privilégiée en aménagement intérieur et en sous-face du préau. Les toitures sont traitées en toiture terrasse avec membrane d’étanchéité partiellement végétalisée et présentent de larges débords.















- |
- |