Extension de l'ESPE Meinau
Project/Architecture
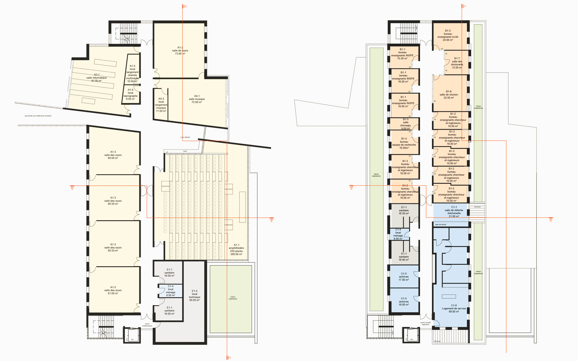
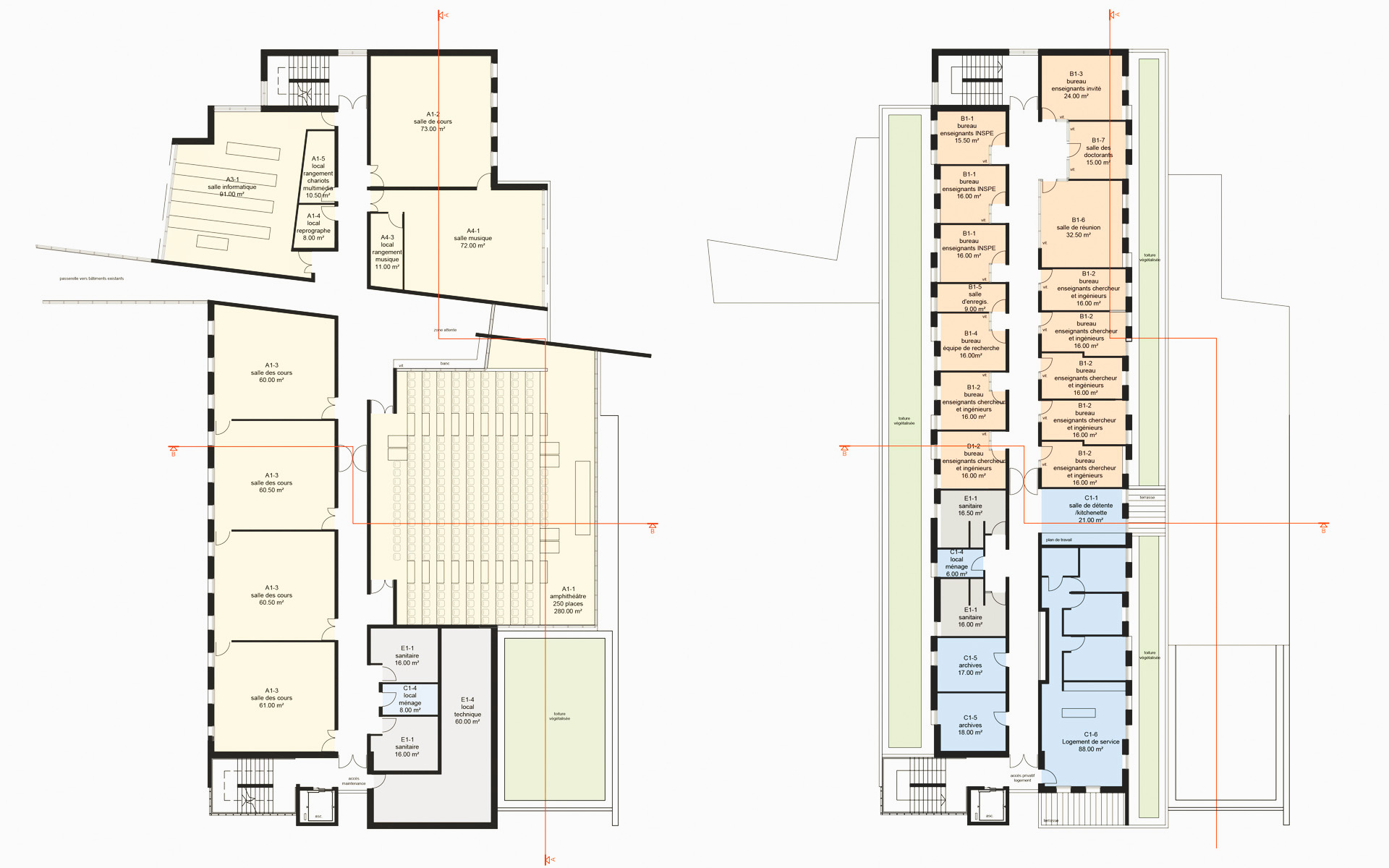
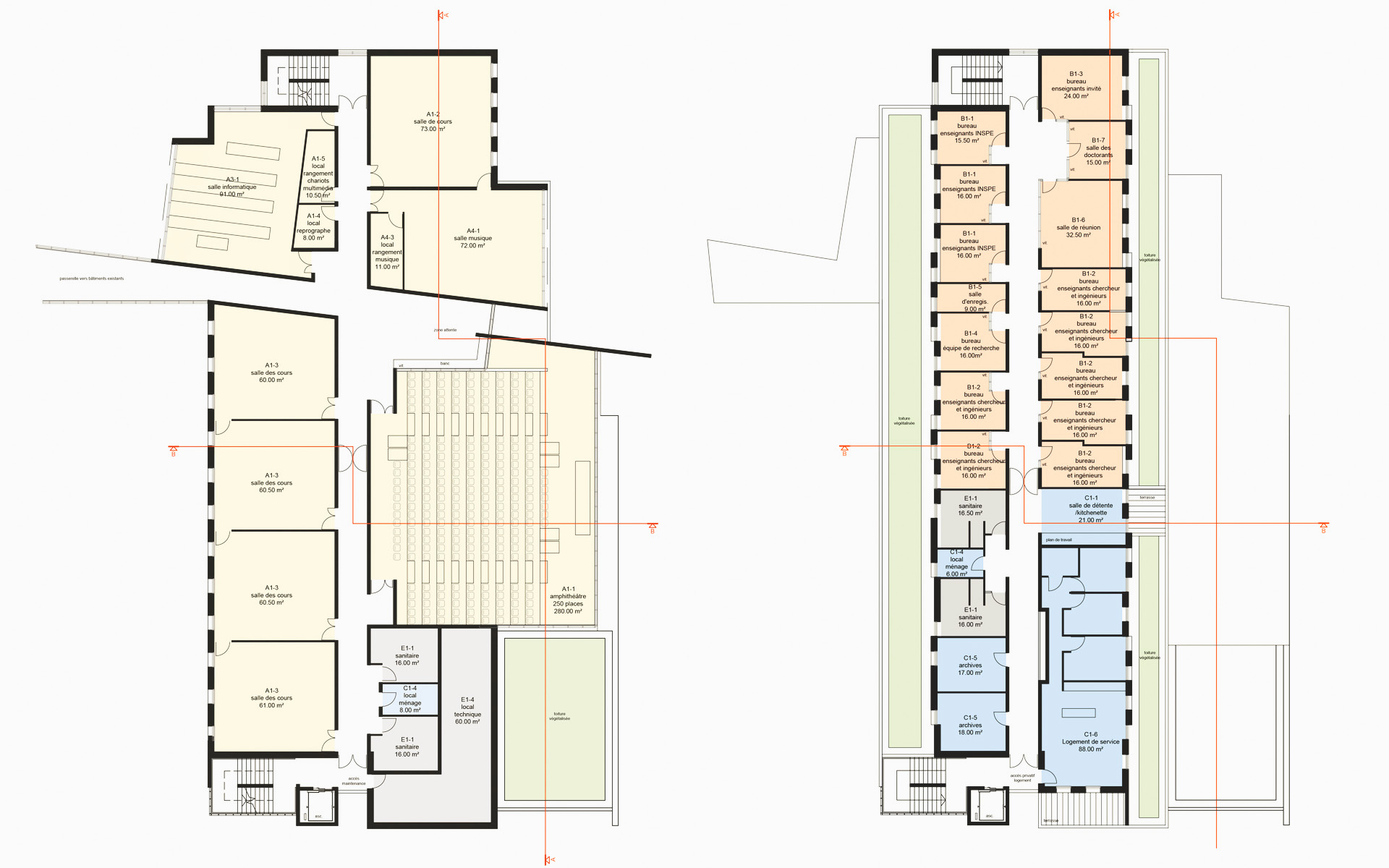
La nouvelle construction se fonde sur les principes suivants : La construction d’un bâtiment simple et fonctionnel, s’inscrivant dans la continuité des niveaux actuels des bâtiments existants. La répartition des différents éléments du programme sur 3 niveaux en rapport avec les usages fonctionnels ou de convivialité qu’ils nécessitent. La composition des différents éléments du programme autour de circulations simples et optimisées avec création d’échappées visuelles, offrant des vues sur l’environnement proche. L’implantation de l’espace destiné à la Vie Etudiante, en RDC, en liaison et à niveau avec les passerelles de la Rue Intérieure et le parc de stationnement. La création d’un Patio, offrant un espace paysager extérieur lumineux qui accompagne et identifie le passage du Foyer des Etudiants vers la Rue Intérieure et permet aux salles de s’ouvrir largement sur l’extérieur. L’implantation du nouvel l’Amphithéâtre, en liaison avec le niveau RDC de la Rue Intérieure, et offrant une vue sur la Forêt. L’implantation, au niveau R+2, du volume des espaces bureaux, bénéficiant d’une vue dégagée sur l’extérieur en façade Est et Ouest.
L’orientation des façades du nouveau bâtiment est une orientation Est/Ouest, à l’identique des deux ailes de bâtiments existantes proches. Cette orientation des façades du bâtiment permet la mise en œuvre de dispositifs de protection solaire simples et efficaces en toutes saisons : BSO relevables, auvents de protection des entrées et ouvertures.
Expression des façades : Le choix du traitement des façades s’est fait dans la continuité du traitement des façades existantes en privilégiant le béton, le verre et l’acier, et en travaillant sur le même vocabulaire architectural. Le niveau R+2 est prévu d’être construit en ossature bois, avec revêtement en bardage cuivre. Le bois a été choisi pour ses qualités environnementales et de confort, le cuivre prépatiné vert, pour sa pérennité et sa couleur. Ce niveau exprime le dernier niveau de la construction, son couronnement, son rapport au ciel. Il s’exprime comme un attique qui dénote des autres niveaux par son matériau, sa couleur et le principe du fractionnement des volumes.










- |
- |