Extension de Pôle santé URCA
Project/Architecture
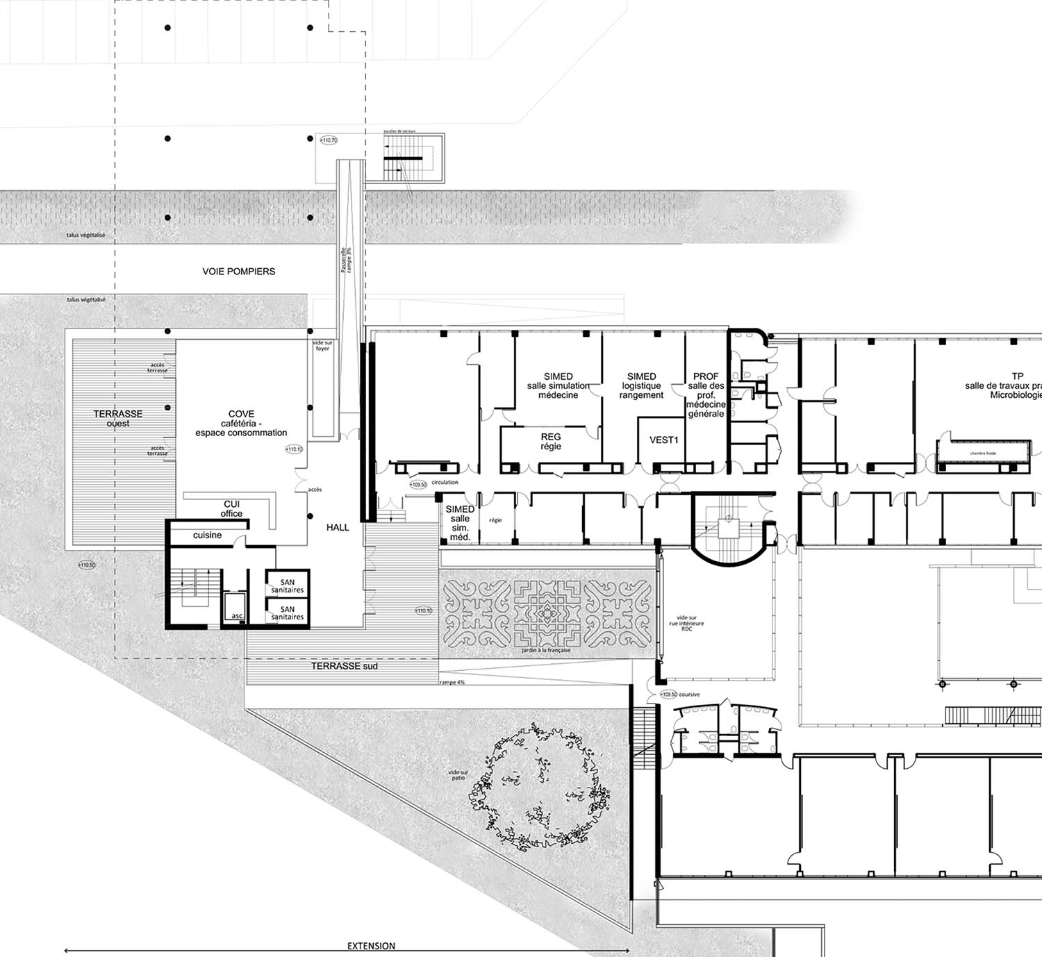
Extension et restructuration du Pôle Santé de l'Université Reims Champagne Ardenne avec :
- construction d'une extension regroupant des espaces d'enseignements mutualisés,
- restructuration du niveau R+3 du bâtiment B pour accueillir l'UFR d'Odontologie,
- restructurations ponctuelles dans les niveaux RDC, R+1, R+2, R+4 du bâtiment B et R-1 du bâtiment A,
- construction d'un Laboratoire d'Anatomie.




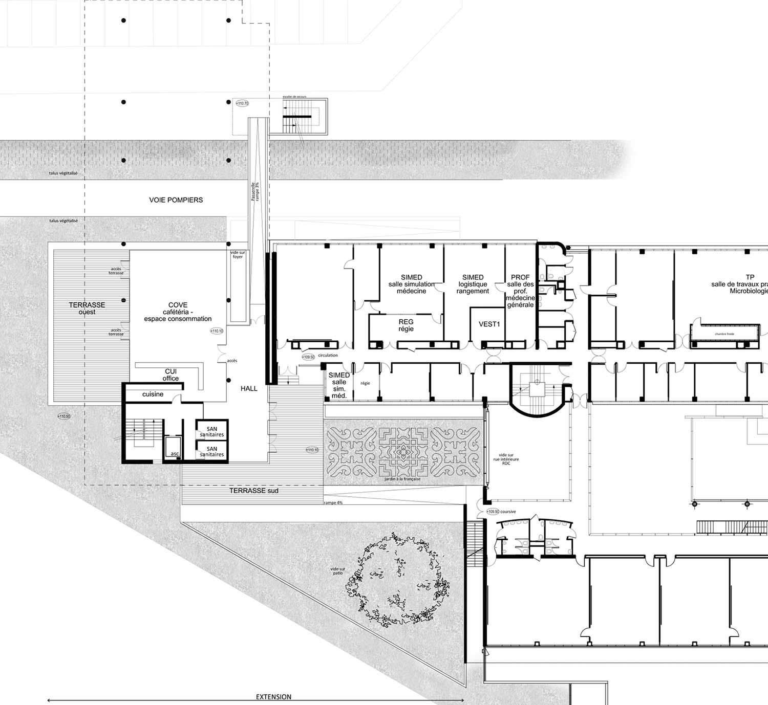
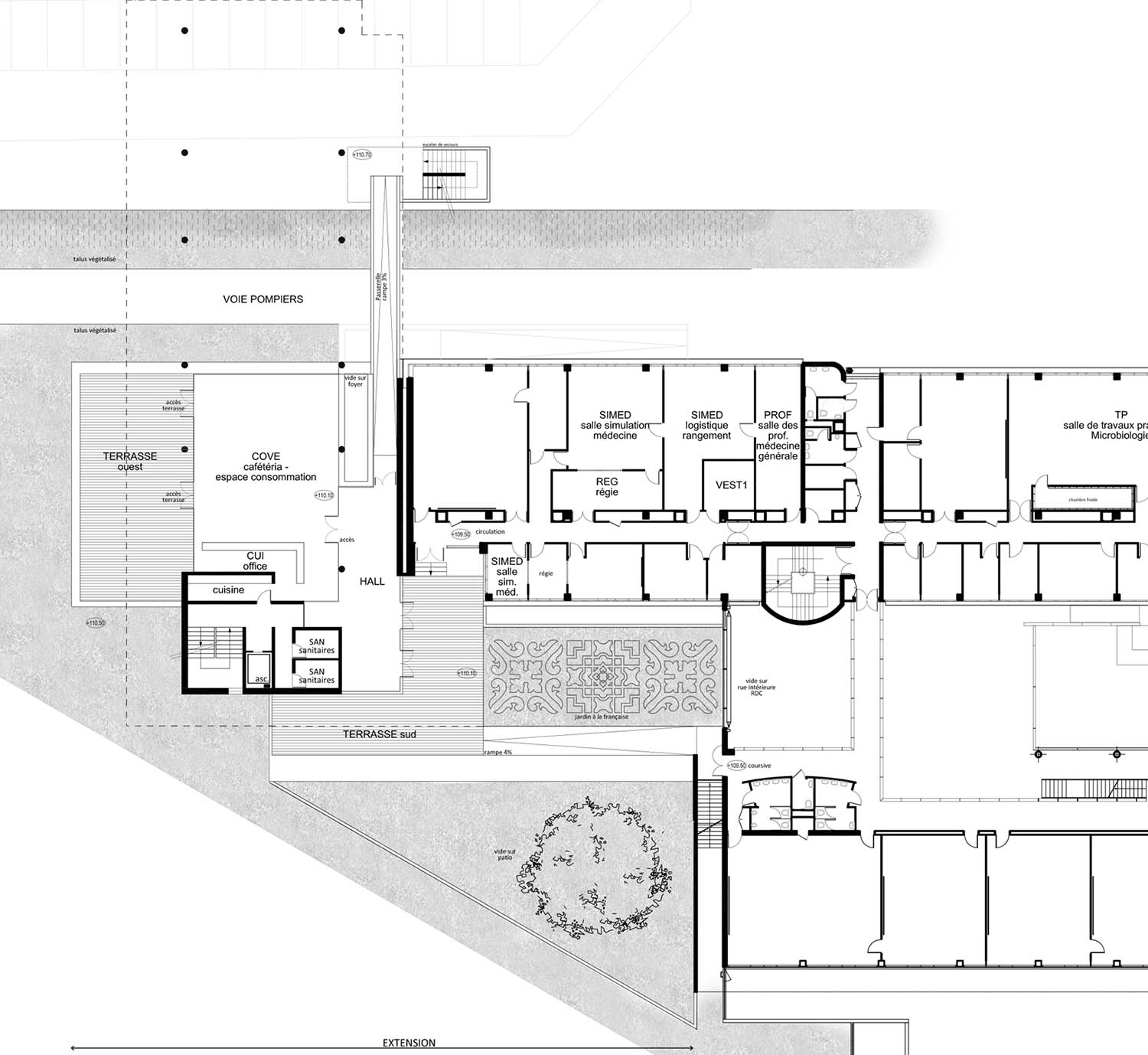
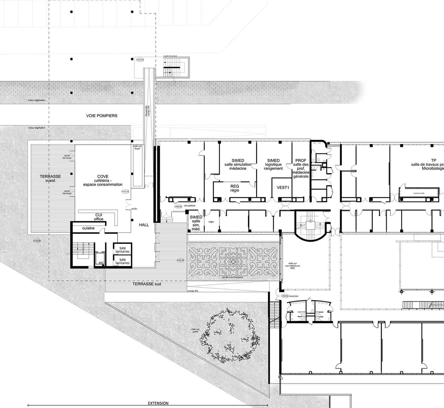
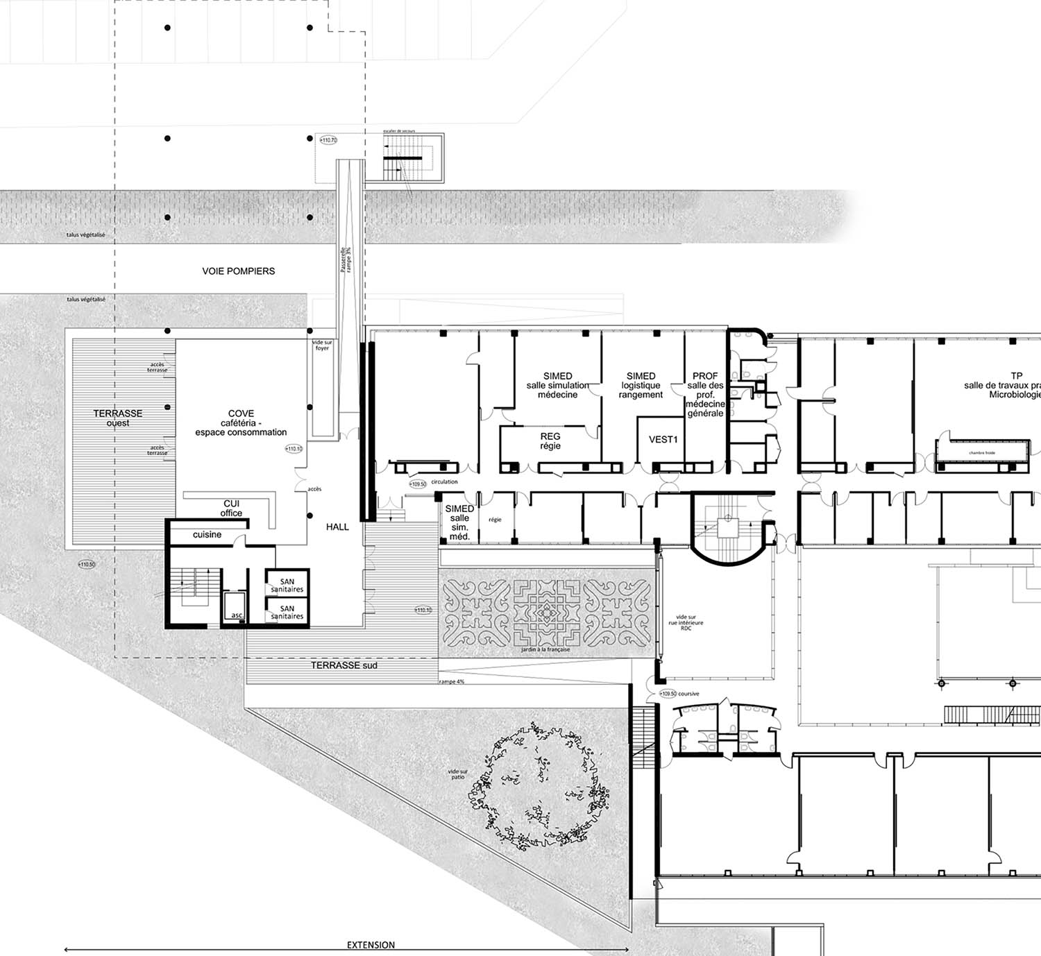
L’extension d’Enseignements Mutualisés
: Le projet répartit les différents éléments du programme sur 4 niveaux superposés, afin d’optimiser les surfaces disponibles et de s’inscrire dans le plan d’organisation global du site.






Le Laboratoire d’Anatomie
: Les différents locaux de cet équipement sont implantés sur un seul niveau de plain-pied, à l’alignement de la voie pompiers située à l’Est du Bâtiment A. Les espaces sont organisés afin d’assurer une séparation complète des flux entre les étudiants, le personnel et les corps et pièces anatomiques.


- |
- |