Lilly - Poste de garde
Project/Architecture
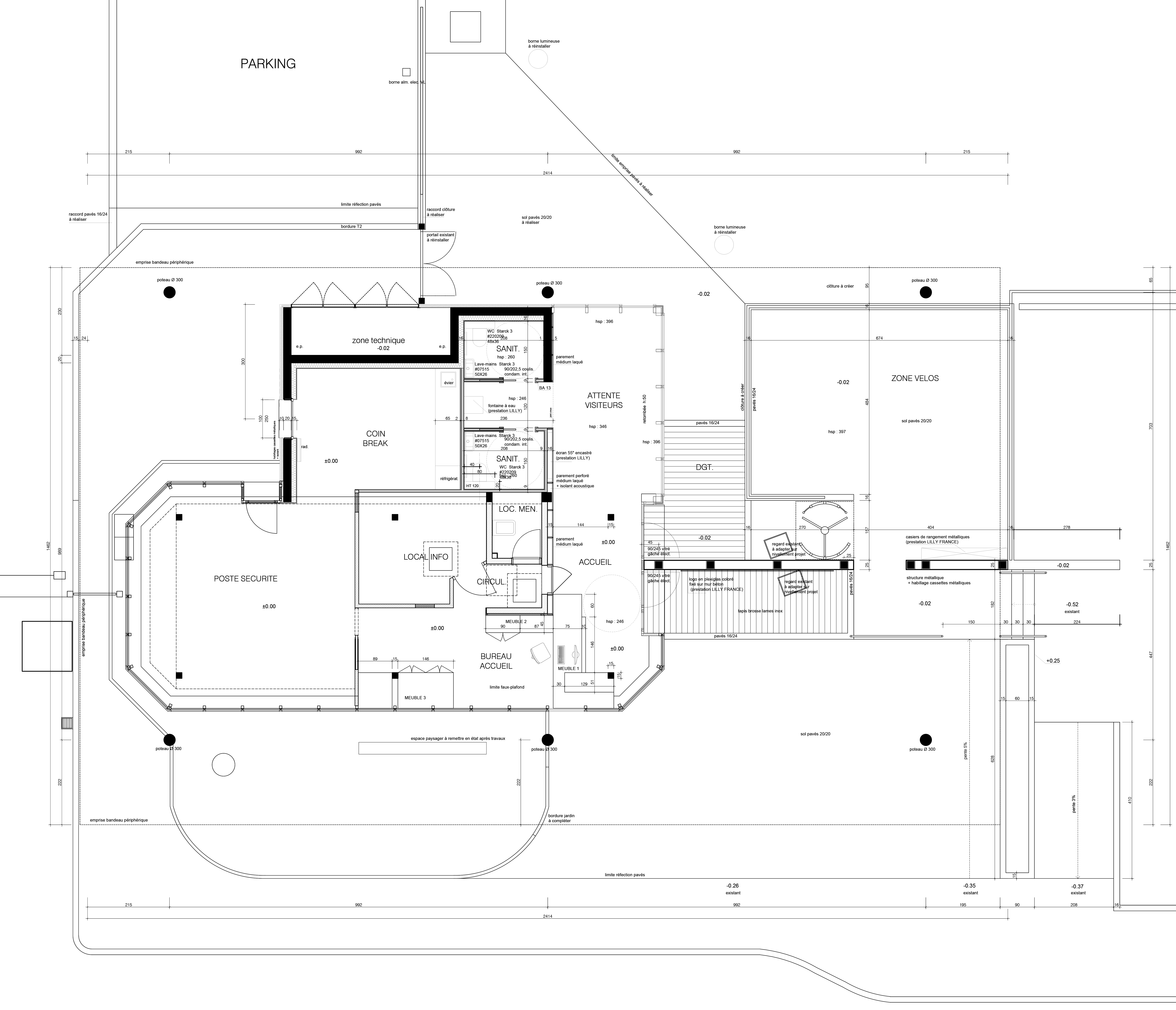
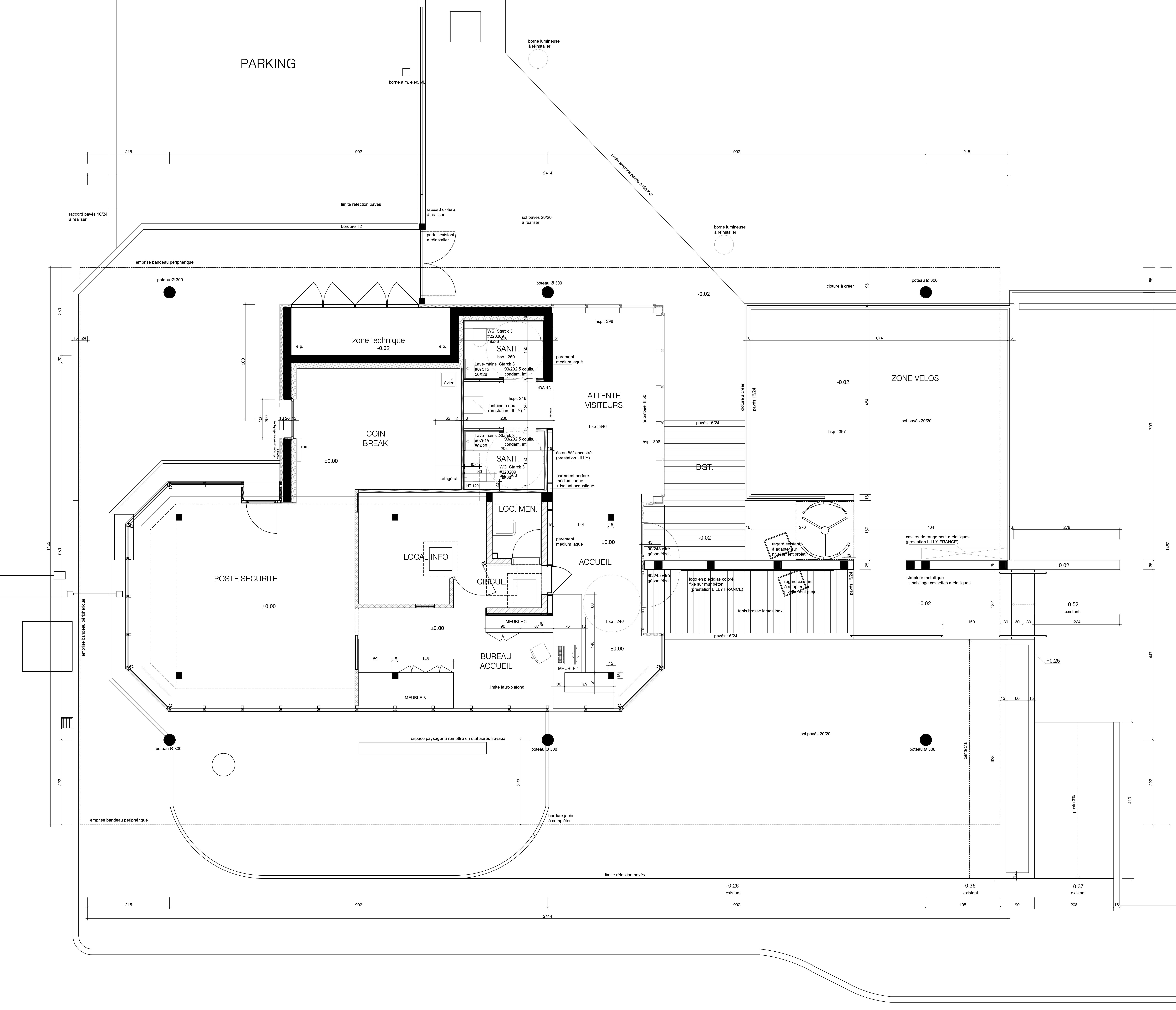
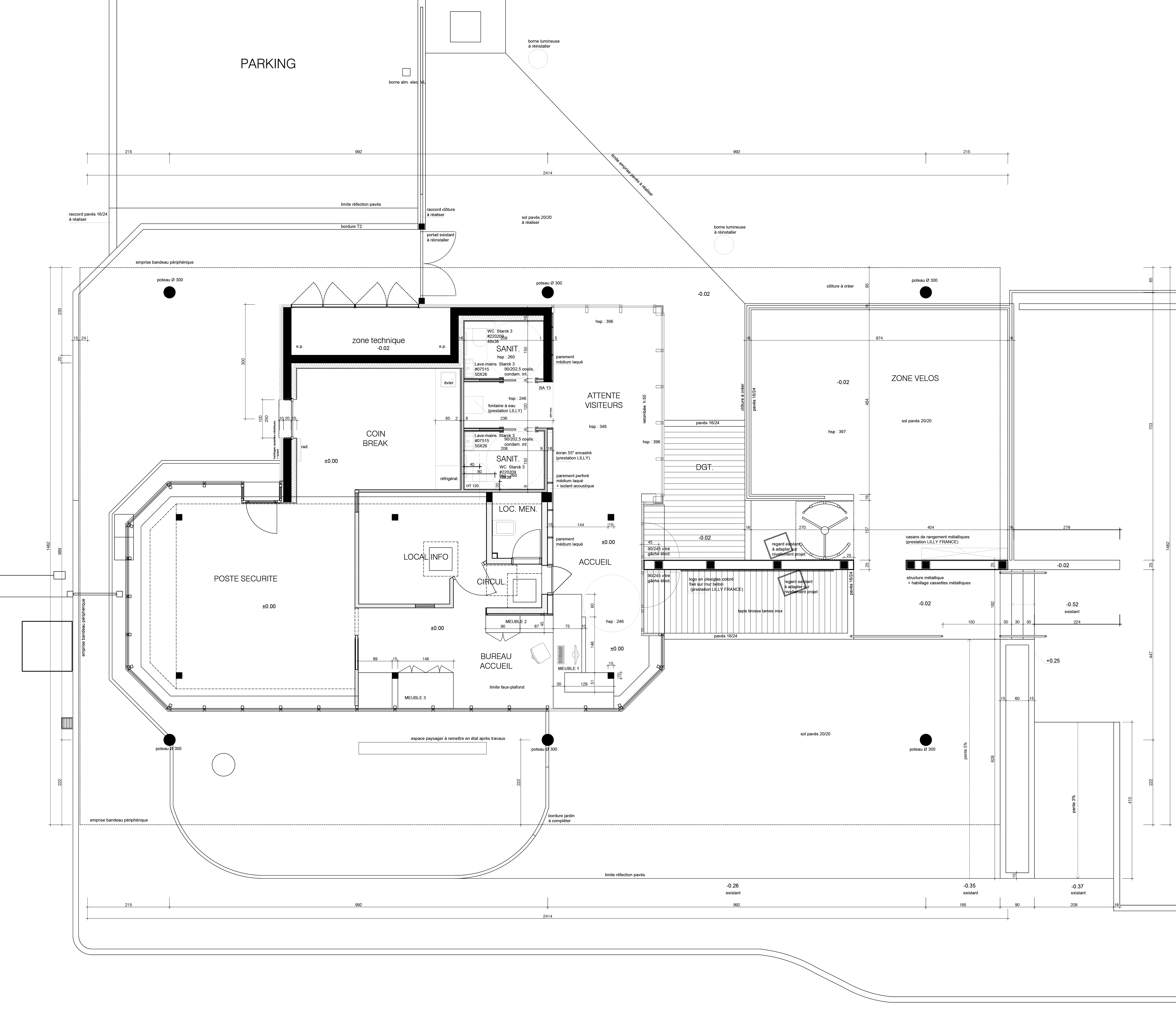
Extension du poste de garde central en vue d'améliorer l'accueil des visiteurs en attente d'accéder sur le site, avec création d'une nouvelle toiture venant couvrir également l'emprise du parc a vélos actuel. Le projet prévoit le remplacement des habillages et des menuiseries aluminium des façades existantes. L'extension est réalisée en maçonnerie enduite et structure métallique. Les parties menuisées seront de type façade rideau en aluminium laque. La toiture est prévue en structure métallique, bac acier et étanchéité autoprotégée, les rives seront habillées par des tôles d'aluminium laque.









- |
- |
- |